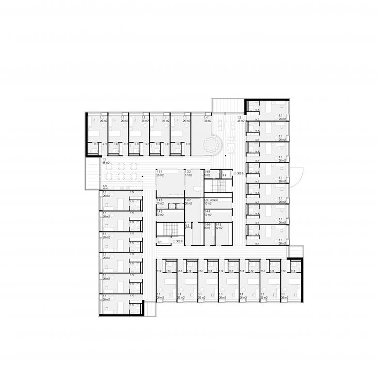
Le Tre Età dell'Uomo

Biasca, Svizzera

1° Premio - Concorso nuova casa anziani di Biasca

Team:
studio we architetti, Lugano
Colombo + Casiraghi Architetti SA, Lugano
Monotti Ingegneri Consulenti SA, Locarno
Neuland Architektur Landschaft, Zurigo

Architetti
studio we architettura
Anno
2023
Stato del progetto
Progetto

Progetti collegati 

  • Gymnasium Schulstraße
    Kronaus Mitterer Architekten
  • GROHE Water Experience Center
    D’art Design Gruppe GmbH
  • Limmatquai 4
    Kästli Storen
  • Volksschule Erlaaer Schleife
    Kronaus Mitterer Architekten
  • Ortsdurchfahrt Domat/Ems
    Luminum GmbH

Rivista 

Altri progetti di studio we architettura 

Villa storica
Cureglia, Svizzera
Casa degli scout
Horgen, Svizzera
Casa Bellavista
Menorca, Spain
Campus USI
Lugano, Svizzera
Scuola d'infanzia
Stabio, Svizzera