Levy Senior and Community Center

Evanston, IL, USA
Foto © Steve Hall

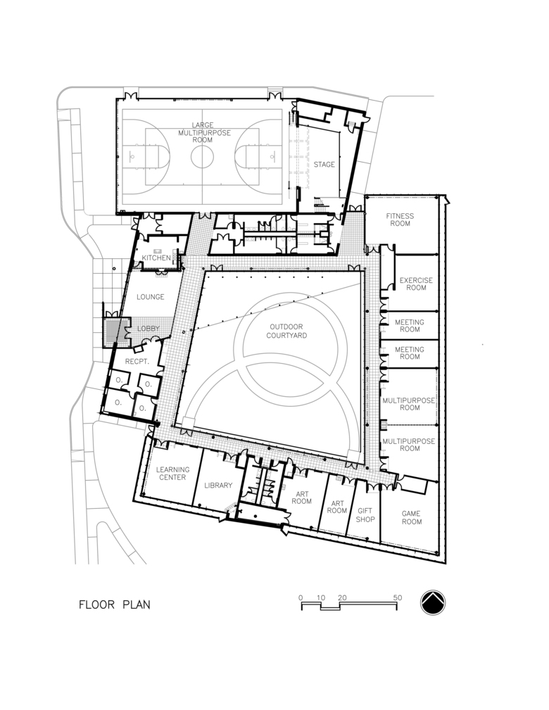
The new senior and community center for a mature Chicago suburb, is located on a reclaimed recycling site in a 27 acre park.  The design approach seeks to visually and spiritually minimize the loss of the City’s finite green space, by creating a see through, pavilion-like building using materials that recall historical park structures.

 

The 25,500 square foot, $6 million center has three components:  the glass enclosed classroom wing shielded by a 13’ high wood louvered screen providing and allowing views through and into the park;  the multipurpose gymnasium/theater constructed of light transmitting, fiberglass panels and  offices and support spaces clad in brick and aluminum.  

 

These three components create a courtyard containing an enabling garden.  This outdoor “classroom” provides additional space for various activities, including yoga, painting, gardening and tai chi.

 

Natural  materials were selected for durability, accessibility and sustainability.  A slate border around the courtyard arcade provides a tactile warning and high contrast definition for users who are visually impaired.  The wood louvers are built from sassafras, a weather resistant sustainable harvested species that allows daylight while protecting the occupants from the glare and heat of direct sun radiation.

 

Two site specific outdoor pieces by sculptor Fred Nagelbach were installed as part of Evanston’s Art in Architecture program.

Foto © Steve Hall
Disegno © Ross Barney Architects
Foto © Steve Hall
Foto © Steve Hall
Foto © Steve Hall
Foto © Steve Hall
Foto © Steve Hall
Foto © Steve Hall
Architetti
Ross Barney Architects
Anno
2002
Stato del progetto
Costruito

Progetti collegati 

  • Moos
    playze
  • Reiters Reserve Premium Suiten
    BEHF Architects
  • Erweiterung und Instandsetzung Hallenbad Altstetten
    MIYO Visualisierung
  • Neubau von fünf Einfamilienhäusern
    Bäumlin+John AG
  • The Forge in der 105 Sumner Street in London
    Kiefer Klimatechnik GmbH

Rivista 

Altri progetti di Ross Barney Architects 

Railyard
Rogers, USA
McDonald’s Chicago Flagship
Chicago, USA
The Chicago Riverwalk
Chicago, USA
Fermilab OTE Building
Batavia, IL, USA
Oklahoma City Federal Building
Oklahoma City, OK, USA