Markthalle Panzerhalle
Siezenheimer Str. 39, Salzburg, Austria
Markt für Flaneure – im Containerhimmel
Transformation der ehemaligen Panzerhalle zu einer neuen Markthalle
Die Halle, am Rande von Salzburg gelegen, diente einst der Produktion von Panzern und Kriegsmaterial. Die Wiederbelebung als Markthalle verlangte zweierlei – einen Umgang mit dem industriellen Charme und der Neuinterpretation der Markttypologie.Die Struktur des Marktes beginnt von der Mitte der Halle aus. Die bestehenden Ziegelmauern dienen als eine Art Rahmen. Auf diese Weise entsteht ein spannender Kontrast zwischen historischer Struktur und der neuen Architektur.
Durch ein raffiniertes Raumkonzept wird die historisch gewachsene industrielle Substanz zu einem Schmelztiegel für Produzenten von hochwertigen, regionalen Gütern, die so präsentiert werden, dass Besucher nicht shoppen, sondern in die Genusswelt eintauchen können. Es gibt keine direkten Wege Theken oder eindeutige Platzzuordnungen – so ist man immer in Bewegung. Verkäufer und Kunden erleben den Raum, der Produktion, Einkauf und Genuss vereint, als eine einzigartige Welt der Erfahrung.
Die Leichtigkeit des Scheins
Stellt man sich eine Markthalle vor, dann reihen sich vor dem geistigen Auge, Stand an Stand, Anbieter an Anbieter – mittig durch eine Gasse erschlossen. Ein „vor und zurück“. Nicht so in der Panzerhalle.
„Wir wollten ein Flanieren ermöglichen, bei dem nicht Effizienz zählt, sondern bei dem die Besucher auf Entdeckungsreise können, Neugierde bekommen und – fast nebenbei –eine Orientierung über das Angebot haben.“
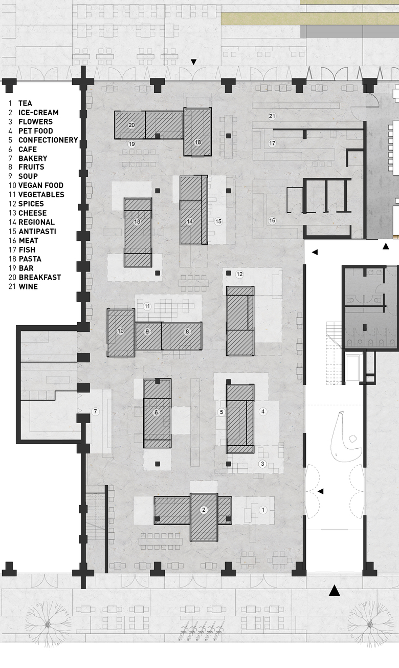
Das Raumprogramm lässt sich nicht einfach klären, ist es doch mehr ein Modell einer inszenierten Raumstruktur, die sich nach auf allen Ebene, auch nach oben, entwickelt. Grundrisse, Wände, Deckenlandschaft greifen hierbei ineinander und schaffen immer wieder neue unterschiedliche Räume, Nischen und Strukturen. Die Abfolge erscheint zufällig. Doch die Organisation der Räume ist detailliert als Bühne der Produkte geplant. Immer abgestimmt auf die jeweiligen Nutzer, immer maßgeschneidert auf die Anforderungen. Es ist aber auch eine Bühne der Menschen, wo Verkäufer und Käufer ihre vorgegebenenPlätze und Rollen tauschen – und so anders kommunizieren, gustieren und konsumieren können.
„Wir haben ein Raum-im-Raum-System entwickelt, das mit Körpern auf allen Ebenen arbeitet – und die Ordnung in der Unordnung sucht.“
Nichts lässt sich so schwer planen, wie Chaos, nichts ist Unnatürlicher als geplante Natürlichkeit. Die neue Markthalle wird zentral organisiert, die Wände – und die alten Ziegelmauern bleiben damit präsent. Die einzelnen Marktstände sind eine Variation von „ein und dem selben“ und doch spielt alles in seiner Unterschiedlichkeit zusammen.
„Im Modell haben wir virtuell alles komplett durchgeplant. Doch die Höhenunterschiede, die vielfältigen Raumaufteilungen, die Materialität – und nicht zu vergessen, die handelnden Personen und ihre Produkte, ergeben erst im realen Raum ein lebendiges Miteinander, das durch erst seine Diversität etwas Gemeinsames schafft.“
Lebendige Ordnung
Wesentliches Element in der implementierten Struktur sind die weißen Container. Sie kreieren nicht nur eine industrielle Atmosphäre; in ihrer cleveren Schichtung, Überlagerung und Reihung bilden sie Räume mit unterschiedlichen Höhen und Ausmaßen. Die Container hängen, stehen – ihre Dimensionen sind unterschiedlich, und nur fragmentarisch wahrnehmbar Um das räumliche Bild zusätzlich zu irritieren, sind an der Decke dazwischen Spiegel oder Fliesen angebracht – man muss immer ganz genau hinsehen, um den Raum zu fassen; und selbst dann verschiebt sich Bild und Abbild. Die unterschiedliche Größe der Container, zum Teil halbiert und nur als Körper von oben abgehängt, zum Teil selbst ein kleiner Shop oder nur Raumtrenner, bestimmen den Rhythmus des Raumes.
„Die Container passen perfekt zum industriellen Look der Halle. Sie schaffen eine eigene Atmosphäre – aber immer gemeinsam mit der Substanz der alten Ziegelhalle.“
Die Container bilden die Struktur und gleichzeitig eine Spange von Raum zu Raum. Sie haben aber noch einen ganz pragmatischen Grund: neben den günstigen Errichtungskosten beherbergen sie auch die Haustechnik, wie etwa die Lüftung.
„Das System ist flexibel, mit vielen Konfigurationsmöglichkeiten. Die Räume der Shops sind komplett im Container, nur mit Überhang oder auch zweigeschossig und bildet die Vielfalt der Betreiber ab. Das Design geht auf die jeweiligen Bedürfnisse ebenso wie auf die präsentierten Produkte ein. Wir haben ein System entwickelt, das mit wenigen Mittel vielfältige Varianten ermöglicht.“
Materialität und Design
Vom Blumenladen, diversen kulinarischen Kleinküchen, Tee- Kaffee und Eisbars oder Wurst- Fleisch- und Fischangeboten – alles vom Feinsten – entsteht in dieser Markthalle ein buntes Miteinander, das auch im Design seine Diversität leben kann. Die Materialien, wie Keramik oder Fliesen, wiederholen sich in vielfältigen Varianten und sind je nach Shopangebot räumlich implementiert. Und och bekommt jeder Anbieter exklusive Präsentationsflächen, in Regalen von rohen Roststahl bis filigranen Holzkonstruktionen,– und in der scheinbaren Zufälligkeit findet sich ihre Ordnung.
„Jeder Shop hat seine Farben, Muster und Materialien – es gibt aber keine definierten Grenzen oder fixen Flächen – alles greift ineinander.“
Neben Vitrinen, Regalen und Präsentationsbereichen, kommen unterschiedliche Tischhöhen zum Einsatz.
Arbeitsflächen oder Servicebereiche sind ebenso individuell gestaltet. Man kann lehnen, stehen oder sitzen. Nie ist die klassische Thekensituation zu finden.
Mikrokosmos
Nicht zuletzt durch die Auswahl der Betreiber, die zum großen Teil vom Bauherrn explizit eingeladen wurden, sich zu beteiligen, ist die insgesamt fast 18.000 Quadratmeter große Panzerhalle ein exquisiter Mikrokosmos geworden. Das Angebot geht über die Markthalle hinaus – und kann auch extern genutzt werden. Das Restaurant etwa hat einen angeschlossenen Veranstaltungsraum, ganz oben ist auch die von smartvoll gestaltete „Loft“ für kleinere und privatere Events. Multifunktional, bis ins Detail durchdacht, bildet die neue Panzerhalle eine eigene Welt inmitten einer vorstädtischen, industriellen und heterogenen Umgebung. Und diese ist sofort vergessen, wenn man über die Schwelle tritt.
„Das offene System lädt im wahrsten Sinne ein –man nimmt sich automatisch Zeit, schaut den Produzenten bei der Herstellung oder Zubereitung ihrer Produkte zu und erfährt dabei nicht nur spielerisch über die Hintergründe, sondern lernt auch die Personen kennen.“
- Architetti
- smartvoll
- Anno
- 2016
- Stato del progetto
- Costruito
- Cliente
- Panzerhalle AG
- Team
- Philipp Buxbaum, Christian Kircher, Olya Sendetska, Tobias Colz, Michael Knoll, Simona Slavova, Dimitar Gamizov






















