Les Docks di Marsiglia
Marsiglia, Francia
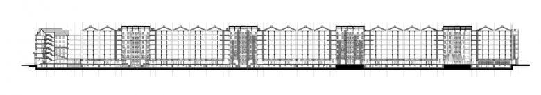
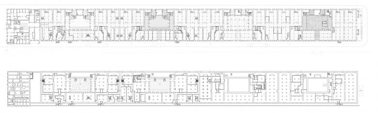
Rivelare la bellezza del luogo per offrirla in condivisione. La trasformazione dei Docks di Marsiglia permette di riallacciare i legami tra il sito e la città, tra gli utilizzatori e gli abitanti dei luoghi, tra passato e futuro. L’architettura è una risposta specifica ad un contesto preciso: il progetto tesse relazioni tra i Docks, la città ed il mare; lo scantinato della costruzione esistente diventa un sistema aperto che attraverso penetrazioni, trasparenze e nuove relazioni, si prolunga fino al mare; la sistemazione delle corti interne è pensata in funzione dei diversi flussi e alla loro intensità rispetto luoghi.
- Architetti
- Atelier(s) Alfonso Femia
- Anno
- 2015
- Stato del progetto
- Costruito
- Cliente
- JPmorgan, Constructa Urban Systems
- Ingegneria Strutturale
- Secmo
- Ingegneria Impiantistica
- G2
- Economisti
- R2M
- Bureau de Contrôle
- Bureau Veritas
- Impresa
- Vinci-Dumez Méditerranée et Girard





















