Modulare Schulraumerweiterung in Bellach
Bellach, Svizzera
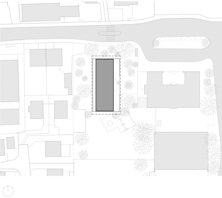
Ziel der Auftraggeberin war schnellstmöglich Schulraum zu realisieren, welcher in Zukunft, mit minimalem Aufwand flächenmässig verdoppelt werden kann. Damit bei einer zukünftigen Expansion kein Aussenraum verloren geht, wurde ein viergeschossiger Modulbau geplant, welcher vorerst nur zweigeschossig ausgeführt wurde.
Diese Herausforderung manifestiert sich in einem speziellen architektonischen Ausdruck. Das Baugerüst wurde so konzipiert, dass es dauerhaft stehen bleibt und der vertikalen Erschliessung dient. Gleichzeitig bietet es einen gedeckten Aussenraum auf jedem Geschoss und damit auch die Möglichkeit im Freien zu unterrichten. Bei einer Aufstockung, kann das Gerüst einfach vertikal erweitert werden. Ein Sicherheits-Netz umgibt das Gerüst und dient zudem als Rankhilfe für eine üppige Begrünung. Das fliegende Dach spendet im Sommer Schatten und schützt die Holzmodule und die Lüftungsmonoblocks vor der Witterung.
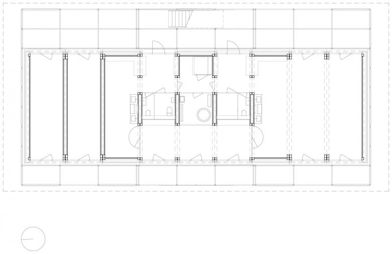
Mit einer Komposition von je 9 Modulen pro Geschoss wird das Raumprogramm an geforderten Kindergarten- und Schulräume erfüllt. Die Räume sind Ost-West-orientiert und zweiseitig belichtet.
Der enge Zeitrahmen von 11 Monaten , vom ersten Treffen bis zur Übergabe an die Nutzerschaft, konnte eingehalten werden – trotz der Schwierigkeiten welche das Bauen in der Pandemiezeit mit sich bringt.
- Architetti
- VERVE Architekten GmbH SIA SWB
- Anno
- 2021
- Stato del progetto
- Costruito














