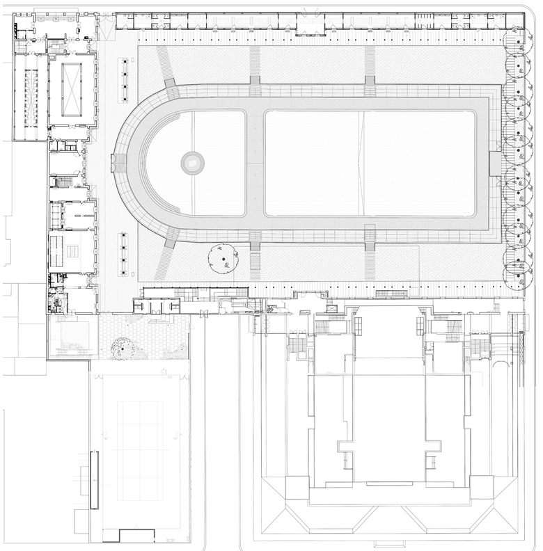
Mysterious Baths - renovation of the Caimi public swimming pool
After ten years of dereliction the renovation project for an old swimming pool became the chance to imagine an innovative system of public spaces in the inner centre of Milan. Next to the Franco Parenti theatre, the swimming pool renovation has been designed to become its open air stage, allowing an original interchange between spectators and visitors.
A new floating wooden platform has been designed to become a sun deck during the day and a stage for concerts and performances during the night. Flower gardens surround the continuous steps all around the swimming pool, natural parterres for performances and events.
A long colonnade redefines the edge between the theatre and the open spaces, hosting temporary cafes and protecting the visitors from the sun.
The original 50mt long swimming pool has been kept moving all the plants in a new underground space. Here an innovative system of water depuration by oxygen reduces the need of chemical additives.
Since the opening Mysterious Baths had a great success with over 1500 visitors per day.
- Architetti
- Laboratorio Permanente
- Anno
- 2016
- Stato del progetto
- Costruito
- Cliente
- Private
- Team
- Nicola Russi, Angelica Sylos Labini, Elena Martucci, André Ruth Shammah, Michele De Lucchi (aMdl), Luca De Stasio, Pietro ferrario, Mario Ventilato, Evgeniya Dubova, Marco di Forenza, Alessandro Zanoletti
- Structural Engineer
- Eng. Pietro Boerio
- MEP
- Ing. Luigi Berti, Studio Beta Progetti
- Landscape
- Barbara Petrecca







