国方电子研发中心

相城经济开发区, 苏州, China

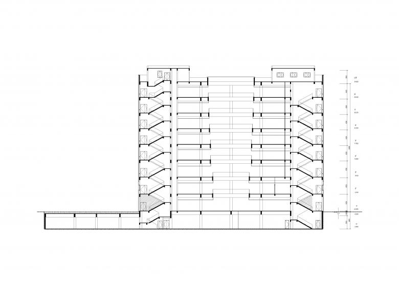
苏州国方电子有限公司总部坐落于苏州市相城经济开发区,作为生产企业的办公研发大楼,其肩负着彰显企业特点与文化的个性标识的使命。建筑整体由立方体和圆柱体共同组成,共计9层(地上8层,地下1层),总建筑面积约19200m²,整体高度约为40m,是苏州国方电子产业园的标志性建筑。文化、管理智慧、
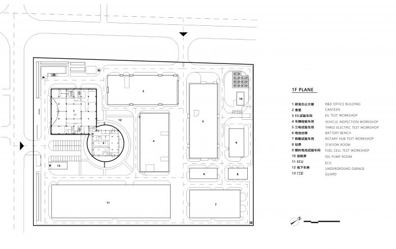
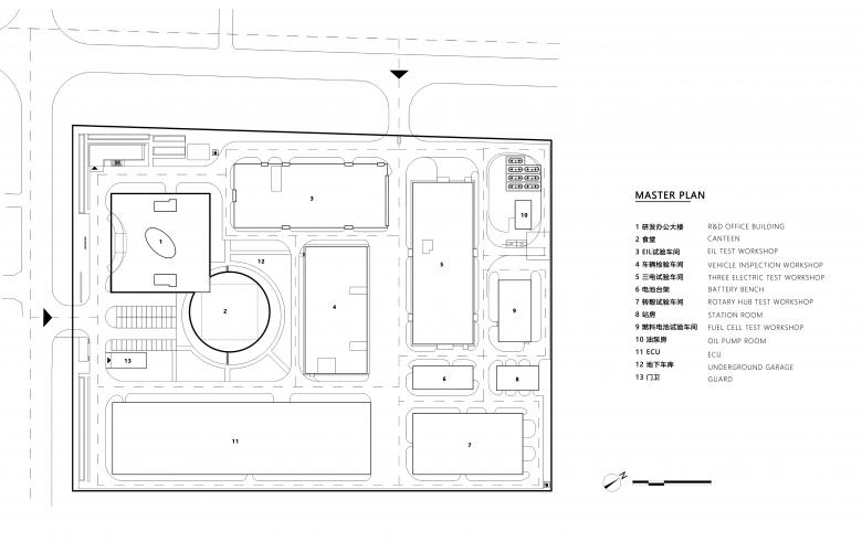
国方汽车电子项目致力于汽车零部件的开发、生产和销售,对加快汽车零部件产业在该区域聚集和打造先进装备制造产业集群具有重要意义。如何体现该区域的合作、融合性质与该企业的入驻激起的浪花是设计整体思想的关键。基于总体背景,设计师选择着重从外立面、空间构成、几何元素、深层意义、城市关系等角度表达想法。
建筑所处区域多为低矮厂房及单一色彩外立面楼宇,缺乏现代化产业气息。为突显国方电子的高科技企业形象,借助玻璃幕墙、几何元素将办公研发大楼打造为具有立体感、画面感的区域独特风尚。研发办公大楼的空间分布巧妙而不拥挤,与周围建筑产生美感的摩擦碰撞的同时,又与厂房形成一种统一的韵味。设计师致力于打造和谐而富有独特美感的城市区域空间。
为彰显企业文化与突出个性标识,外在的视觉表现与内在的韵味表达都显得尤为重要。简单的几何特性和深厚的文化属性被视作简洁传神的设计方案的首选。因此,“方”与“圆”成为此次“破题”最为关键的设计元素。方形的棱角分明展现的是积极进取的态度和充满活力的攻坚决心。圆形的自然和谐囊括的是沟通交流、通达协调的理念。简单的情绪表达并不是设计的最终目的,将企业总部职能汇聚于设计当中才能将建筑的情绪得以升华,将简单的几何元素赋予内涵。
从几何类型上,利用方形塑造出严谨、刚性、易读的属性;而圆是柔和、过渡、自然的。作为一个厂区配套办公建筑,方形位于地块拐角边界使建筑更易于增强城市地块界面感,圆形则作为休闲区域更偏向地块内向的自然和流动。从功能上,方形体量旨在容纳办公研发人员并进行企业文化展示,打造区别于车间的办公环境,圆形体量则是厂区内的人文、休闲的配套功能。
设计在建筑外表面采用了大量的玻璃幕墙,主楼部分公共区域与研发区域在外立面通过不同的材质加以区分,而副楼则全部采用玻璃幕墙使得公共景观区域更加开阔,提升了建筑的自然属性,其既诠释了“方圆调和”,又使得整个建筑显得轻盈而现代。这是一种新型的办公建筑——既简单、高效,又具有标志性。
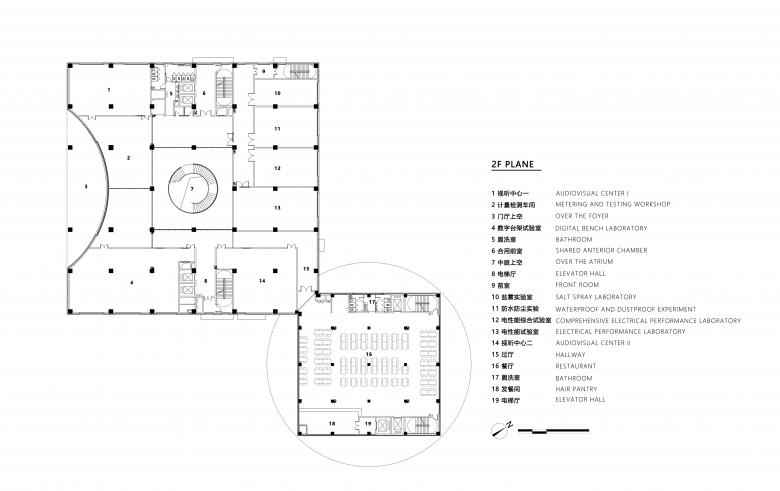
而建筑内部空间的营造,建筑师在立方体中间由小至大挖去一个圆台,不仅提高了建筑内部的自然光采光,产生了一个有趣的中庭,提供了一个高品质办公环境;而且在灵活的框架内,创建了一系列的社交空间,以鼓励非正式会议、合作和终极创新。

Architetti
Parallect Design
Anno
2022
Stato del progetto
Costruito

Progetti collegati 

  • Moos
    playze
  • Reiters Reserve Premium Suiten
    BEHF Architects
  • Erweiterung und Instandsetzung Hallenbad Altstetten
    MIYO Visualisierung
  • Neubau von fünf Einfamilienhäusern
    Bäumlin+John AG
  • The Forge in der 105 Sumner Street in London
    Kiefer Klimatechnik GmbH

Rivista 

Altri progetti di Parallect Design 

焦溪是家小院
常州, China
Parallect Design
China
岐院:山川 · 素屋 · 窗
Hangzhou, China
五樟庭文旅生活馆
苏州市, China
长沙岭小学公益改造
醴陵市, China