Neubau eines Hörsaalgebäudes der Universität Bielefeld
Bielefeld, Germania
Im Anschluss an einen erfolgreichen Wettbewerbsbeitrag aus dem Jahr 2018 wurden behet bondzio lin architekten mit der Umsetzung eines freistehenden Hörsaalgebäudes mit angegliedertem Seminarbereich auf dem Campus der Universität Bielefeld beauftragt. Zielsetzung des Wettbewerbes war es, Ersatz für aufgrund von Sanierungsmaßnahmen geschlossene Unterrichtsräume anbieten zu können und die vorhandenen Räumlichkeiten auch langfristig zukunftsweisend zu erweitern. Das Gebäude wurde im Oktober 2021 fertiggestellt.
Städtebauliche Lage:
Der quaderförmige Gebäudekörper liegt rückseitig in den nördlichen Hangausläufern des Teutoburger Waldes. Die gegenüberliegende Zugangsseite orientiert sich hin zum markanten Universitätshauptgebäude aus dem Jahr 1969 und nimmt gleichzeitig die Gebäudeflucht der bestehenden seitlichen Solitärbebauung auf.
Gebäudeorganisation:
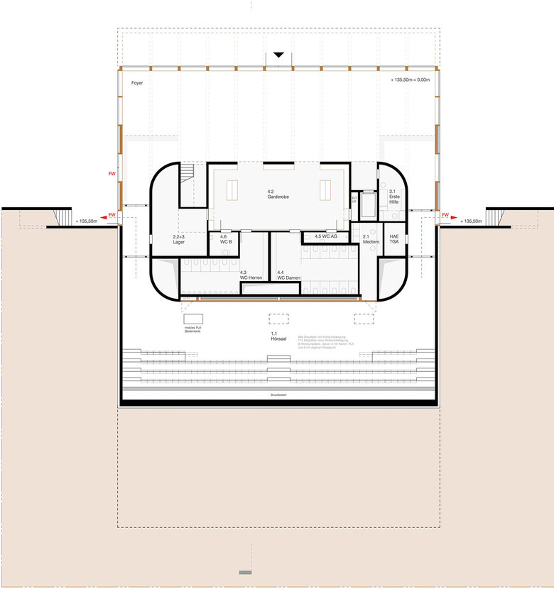
Der an das Gelände geschmiegte, rückseitige Gebäudeteil beherbergt den 650 Sitzplätze umfassenden Hörsaal. Im über die Längsfassaden tagesbelichteten, doppelgeschossigen Saal folgt das Gestühl dem natürlichen Hangverlauf.
Ein im 1.Obergeschoss gelegener Seminarbereich kragt über das vorderseitige Eingangsfoyer im Erdgeschoss aus. Ein zentraler Kern mit Nebenräumen gliedert die zuvor beschriebenen Bereiche und dient der vertikalen inneren Erschließung.
Das Ausnutzen der natürlichen Hanglage bei der Anordnung des Hörsaals und der Seminarräume ermöglicht ebenerdige Ausgänge auf den entsprechenden Geschossen. Durch diese Entscheidung reduzieren sich die sonst komplexen Anforderungen an die Entfluchtung sowie den Brandschutz: Eine Ausführung des Gebäudes als konstruktiver Holzbau im Sinne von Ressourcenschonung und angestrebter Optimierung von Montagezeiten ist so möglich.
Konstruktionsweise – Der Einsatz von Holz als konstruktives Material mit geringem Primärenergieeinsatz bei Erstellung und mit dem Potential einfacher Wiederverwertung am Ende des Lebenszyklus entspricht dem zeitgemäßen Wunsch nach mehr Nachhaltigkeit im Bauen.
Dementsprechend wurden nur erdberührte Bauteile wie die Flächengründung und der zentrale Kern gemäß Brandschutzanforderungen von F90 in Stahlbeton ausgeführt. Das verbleibende Tragwerk, Geschossdecken und die Gebäudehülle wurde in Holzbauweise errichtet.
Auf einachsig gespannten Parallelgurtbindern aus Brettschichtholz lagern kreuzverleimte Brettsperrholzplatten und bilden die Dach- und Geschossdecken des Gebäudes. Die Leimholzbinder sind in Aussparungen des zentralen Stahlbetonkerns eingelassen und verankert. Auf der gegenüberliegenden Fassadenseite liegen sie auf Brettschichtholzstützen auf. Aufgrund von Spannweiten von bis zu 25 m kommen über dem Hörsaal Satteldachbinder zum Einsatz. Die nichtragenden Außenwände bestehen ebenfalls aus kreuzverleimten Brettsperrholzplatten.
Fassade – Die eingeschossige Auskragung des Baukörpers zur Straßenseite im andernfalls schlichten Gebäudevolumen signalisiert die Lage des Haupteingangs und bildet gleichzeitig ein natürliches Vordach.
In Anlehnung an die hellweißmetallischen Fensterbänder des Hauptgebäudes wurden die Fassaden mit silberweißem Titanzink in horizontal umlaufender Stehfalzdeckung bekleidet. Die gewählte, handwerkliche Verlegungsart erzeugt je nach Lichteinfall eine lebendige Textur auf den unterschiedlich breiten Zinkbändern.
Kontrastfarbige, eloxierte Aluminiumfensterbänder mit gleichmäßig vertikaler Gliederung spannen sich zwischen den horizontalen Scharren auf. Sie belichten die jeweiligen Unterrichtsräume und das umseitig verglaste Eingangsfoyer. In der außenseitigen Kassettendecke des Vordachs wird die Fensterprofilfarbe und Materialität fortgeführt.
Innenraum – Aus dem Eingangsfoyer gelangt man beidseitig des zentralen Betonkerns „Centerbox“ in den neuen Hörsaal. Dabei akzentuieren die Ausrundungen des Kerns, sowie das über einen zweigeschossigen Luftraum einfallende zenitale Licht die Wegeführung zum Hörsaaleingang.
Der Hörsaal wird wahlweise links- oder rechtsseitig der Projektionsfläche auf der „Centerbox“ durch eine vorgelagerte Lobby ebenerdig betreten.
Am gegenüberliegenden höchsten Punkt der Hörsaalbestuhlung kann der Saal ebenso auf geländegleichem Niveau verlassen werden. Unterhalb des Geländehorizonts gelegene Raumanteil ist mit Nachhall dämpfender Akustikbekleidung belegt, die oberhalb dieses Horizonts angeordneten Fensterbänder auf den lateralen Fassaden erlauben den Ausblick zurück in die Umgebung.
Im Obergeschoss über dem Foyer sind drei frei bestuhlbare Seminarräume für jeweils 50 Personen eingerichtet. Die Räume sind über eine offene Treppe an das Eingangsfoyer angebunden. Ein vorgelagerter Verbindungsflur gewährt über die Schmalseiten Blicke zurück nach unten in das Eingangsfoyer. Genauso wie der Hörsaal im Erdgeschoss, verfügt das Obergeschoss über geländegleiche Ausgänge, so dass auch von hier direkt ins Freie entfluchtet werden kann.
Über einen separaten Zugang innerhalb der „Centerbox“ im 1. Obergeschoss werden die Haustechnikräumlichkeiten erreicht. Die Technikräume erstrecken sich innerhalb des Kerns bis in ein 2. Obergeschoss und sind über eine zugehörige interne Erschließung zugänglich.
Den Innenraum bestimmt eine reduzierte Materialpalette. Dabei prägen das transparentweiß lasierte und sichtbar belassene Holztragwerk und der mit grober Brettschalung strukturierte Sichtbeton der „Centerbox“ die Raumatmosphäre vornehmlich. Die Beleuchtung unterhalb der Dach- und Deckenbinder betont die Linearität des Tragwerks.
Mittels Materialeinsatz werden die Räume zusätzlich in ihrer Höhe gegliedert: so finden sich unterhalb des Horizonts über dem Erdgeschoss auf das Tragwerk farblich abgestimmte Holzbekleidungen. Wände oberhalb des Horizonts sind mit hellen Vorwandschalen bekleidet. Die Innenwandbekleidungen und zusätzlich Akustiksegel zwischen den Holzbindern erfüllen Anforderungen aus dem Schallschutz und der Raumakustik.
Innerhalb des Stahlbetonkerns ausgebildete Nischen, die nutzerrelevante Erschließungs- oder Nebenfunktionen aufnehmen - wie den Aufzug, die Garderobe oder den skulpturalen Treppenaufgang, reihen sich über ihre Auskleidung mit entsprechend transparentweiß lasiertem Furnierholz in den Materialkanon ein.
- Architetti
- behet bondzio lin architekten GmbH & Co. KG
- Anno
- 2021
- Stato del progetto
- Costruito
Progetti collegati
Rivista
-
-
La Costruzione della settimana
The Three-Body Problem: Trapped in a Wave Sandwich
Eduard Kögel, Scenic Architecture Office | 13.04.2026 -






















