Neubau Turnhalle/Aula Hagen

Altdorf (UR), Svizzera
Visualizzazione © STUDIO 12, Luzern

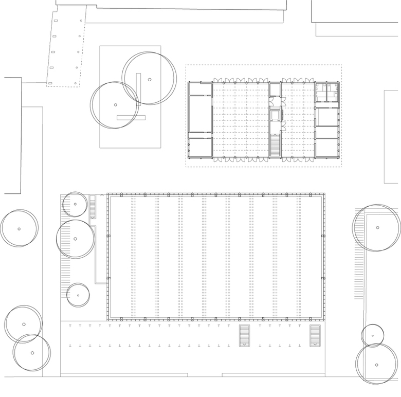
Die Schulanlage Hagen liegt im Zentrum von Altdorf und wird seitlich von der Bahnhof- und der Seedorferstrasse begrenzt. Der heutige Schulcampus ist ein Ensemble von dicht aneinandergereihten Einzelgebäuden verschiedener Dekaden, die einen heterogen zusammengehaltenen Aussenraum bilden. Die Erweiterungen der Klassentrakte im Norden haben dazu geführt, dass die Schulanlage ihren Schwerpunkt verloren hat.

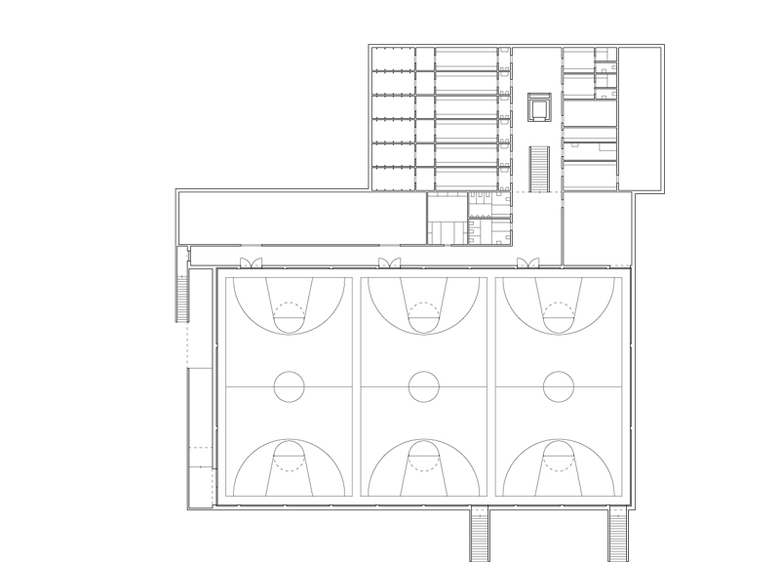
Die neue Dreifachturnhalle ist als feingliedrige, leuchtende Laterne entlang der Bahnhofstrasse gesetzt. Sie wird in das Erdreich versenkt, übernimmt so die Traufhöhe der benachbarten Häuser und reiht sich in das bestehende Strassenbild ein. Zusammen mit den Häusern der Bahnhofstrasse und den bestehenden Schulgebäuden formt die Dreifachturnhalle einen grosszügigen, zentralen Schulhof. In dessen Mitte sitzt das pavillonartige Foyergebäude und gibt dem Schulcampus räumlich wie programmatisch eine der Anlage angemessenes Zentrum.

Das als Insel vorgeschlagene Foyergebäude lässt "einen" grosszügigen Pausenhof entstehen, gliedert unterschiedlich dichte Bereiche mit grosser Aufenthaltsqualität und bewirk differenzierte Raumbeziehungen. Die Zugänge zum Foyer sind zentral gelegen und gut auffindbar, sowohl von den Schulgebäuden als auch vom öffentlichen Raum. Das Foyer erschliesst gleichzeitig Aula und Dreifachturnhalle und kann durch die räumliche Nähe für verschiedene Nutzungen in Kombination mit den Aussenräumen unterteilt und vielfältig genutzt werden. Damit ergeben sich kurze Wege wie auch eine optimale Orientierung mittels spannungsvollen Sichtbezügen für Besucher oder Sportler.

Beide Bauten sind geprägt durch vertikal gereihte Konstruktionshölzer über dem Betonsockel, welche die gläsernen Fassadenteile, wie auch die mit Kupferblech verkleideten Füllungen ordnen und zusammen mit den Sonnenschutzmarkisen vor dem Tragwerk eine lebendige Tiefe der Gebäudehülle erzeugen. Die Basis für einen festlichen Ausdruck im Inneren, bildet eine konsequente Materialästhetik der hölzernen Bauteile im Wechselspiel mit rohem Beton und ornamental vorgeschlagenen Farbakzenten.

Visualizzazione © STUDIO 12, Luzern
Visualizzazione © STUDIO 12, Luzern
Architetti
nik biedermann architekten gmbh
Anno
2011
Stato del progetto
Progetto
Programm
Dreifachsporthalle, Aula mit Foyer
Bauherrschaft
Gemeinde Altdorf
Architekten
Nik Biedermann / Roman Singer / Rémy Baenziger
Rauminhalt SIA 416
24‘750m3
Gebäudekosten BKP 2
ca. Fr. 7.5 Mio.
Offener Projektwettbewerb: 2011
4. Rang

Progetti collegati 

  • Moos
    playze
  • Reiters Reserve Premium Suiten
    BEHF Architects
  • Erweiterung und Instandsetzung Hallenbad Altstetten
    MIYO Visualisierung
  • Neubau von fünf Einfamilienhäusern
    Bäumlin+John AG
  • The Forge in der 105 Sumner Street in London
    Kiefer Klimatechnik GmbH

Rivista 

Altri progetti di nik biedermann architekten gmbh 

Instandsetzung / Umnutzung Städtische Poliklinik
Zürich, Svizzera
Amtshaus III Teilinstandsetzung
Zürich, Svizzera
Umbau Schopf Sterneggweg
Meilen (ZH), Svizzera
Machbarkeitsstudie Villa "Guggenbühl"
Herrliberg (ZH), Svizzera
Umnutzung "Haus zur Sul"
Zürich (ZH), Svizzera