Neubau Wohn- und Werkstättengebäude Garage Johann Frei AG
Bauherrschaft:
Garage Johann Frei AG
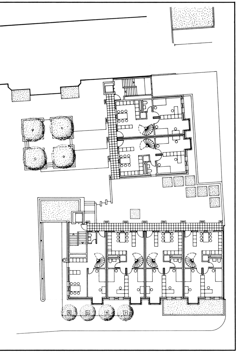
Städtebau:
Schliessen einer Baulücke, Aufnahme der Gebäudeflucht an der Wildbachstrasse mit Einfahrt zu den Werkstätten, ruhiger Hinterhof mit Zugängen zu den Wohnungen.
Nutzung:
Als Gewerbebetrieb einer Autogarage und 12 Laubengangwohnungen verschiedener Grösse
Konstruktion:
Untergeschosse, Decken und Wände in Stahlbeton oder Mauerwerk, zweischalige Aussenwände mit Dämmung und Kalksandsteinmauerwerk
- Architetti
- Rafflenbeul + Partner Architekten AG
- Anno
- 1987
- Stato del progetto
- Costruito
Progetti collegati
Rivista
-
-
La Costruzione della settimana
The Three-Body Problem: Trapped in a Wave Sandwich
Eduard Kögel, Scenic Architecture Office | 13.04.2026 -









