Neubau Wohnhaus Schulstrasse

Pfäffikon, Svizzera
Ersatzneubau Wohnhaus Schulstrasse, Neukonzeption und Vorprojekt (2018)

Wettbewerb Sanierung und Teilersatz: 1. Preis (2015)
Neukonzeption Ersatzneubau, Vorprojekt (2018)

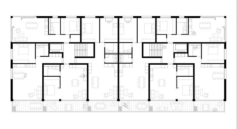
Ersatzneubau Wohnhaus Schulstrasse, Neukonzeption und Vorprojekt (2018)
Ersatzneubau Wohnhaus Schulstrasse, Neukonzeption und Vorprojekt (2018)
Ersatzneubau Wohnhaus Schulstrasse, Neukonzeption und Vorprojekt (2018)
Ersatzneubau Wohnhaus Schulstrasse, Neukonzeption und Vorprojekt (2018)
Wettbewerb Sanierung und Teilersatz: 1. Preis (2015)
Visualizzazione © Architron
Architetti
TK Architekten
Anno
2018
Stato del progetto
Progetto
Cliente
Utorem

Progetti collegati 

  • Moos
    playze
  • Reiters Reserve Premium Suiten
    BEHF Architects
  • Erweiterung und Instandsetzung Hallenbad Altstetten
    MIYO Visualisierung
  • Neubau von fünf Einfamilienhäusern
    Bäumlin+John AG
  • The Forge in der 105 Sumner Street in London
    Kiefer Klimatechnik GmbH

Rivista 

Altri progetti di TK Architekten 

Revitalisierung Shopping Center «Serfontana»
Morbio Inferiore TI, Svizzera
Wohnhaus am Zürichsee
Zürichsee
Refresh Grüssen Center
Pratteln, Svizzera
Erneuerung Fassade Bürohaus Friesenberg
Zürich, Svizzera
Umbau und Erweiterung Wohnhaus
Zürich Fluntern, Svizzera