Neue Bürowelt Wien Energie Tower
Thomas-Klestil-Platz 14, Wien, Austria
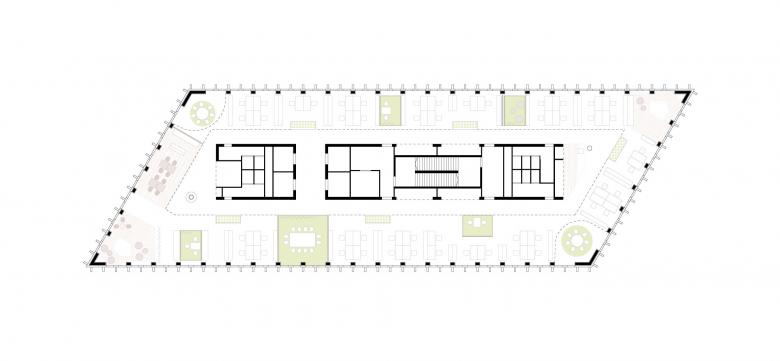
„Die DNA im Design“
„Endlich Ausblick aus dem Hochhaus auf die Stadt! Die Räume werden geöffnet und neu geordnet: Eine helle, kommunikative Bürolandschaft alterniert mit Rückzugsbereichen für Meetings und konzentriertes Arbeiten.“
„In die spitzen Winkel der Gebäudegeometrie schieben sich Bibliotheks- und Besprechungsräume. Das neue Holzpodest bringt die MitarbeiterInnen außerdem näher an die umliegende Stadt!“
„Der mit Holzlamellen verkleidete, statische Kern des Hochhauses wächst wie ein – Energie spendender – Baumstamm durch alle Geschoße und bildet die Corporate Identity des Hauses subtil ab.“
„Holz, Teppiche, Stoffe – eine optimale Akustik und warme Farbgebung. Das Baukastensystem mit Arbeitsplatzinseln, Kreativboxen und Garderoben ist flexibel.“
„Wir öffneten die Etagen zu Bürolandschaften, wählten eine warmen, haptische Materialisierung und eine heitere Farbigkeit. Die Möbel stehen auf Füßen, um den Boden durchgängig zu zeigen und einen größeren Raumeindruck zu bewirken.“
„Die aktivierten Ecken schaffen beste Bedingungen für konzentrierte Gespräche und das warme Eschenholz generiert zusätzlich den Charakter eines Salons.“
„Die Teeküchen und Pausenräume strukturieren das Raumkontinuum zu einem harmonischen Programm und schaffen mit ihren farblichen Akzenten klare Orientierung.“
- Architetti
- Schenker Salvi Weber Architekten ZT GmbH
- Anno
- 2019
- Stato del progetto
- Costruito
- Team
- Andreas Grasser, Falk Lennart Kremzow, Martin Maidl, Sven Mayer-Schwieger, Thomas Morgner, Barbara Roller, Jana Sack, Michael Salvi, Andres Schenker, Pia Schmidt, Zsófia Varga, Thomas Weber































