New Office of Atelier Heimat
Beijing, China
The project is located in the urban fringe in a cultural and creative park outside the East Fifth Ring Road in Beijing. The cultural and creative park used to be a chemical plant.
The exterior wall and the roof are white gray, together with two white silos, like a group of “still life sketch” formed by geometry.With the rising and setting of the sun, it shows a series of beautiful pictures by the combination of objects and their shadow.
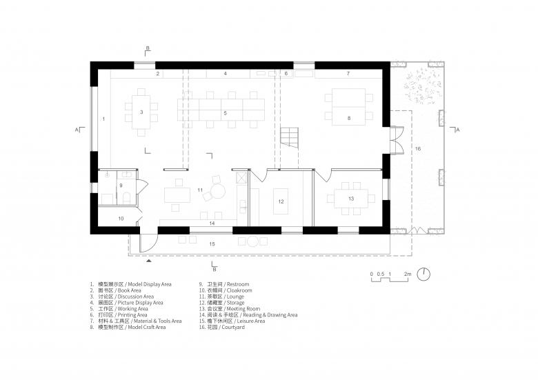
The architects adjust the space and human's behavior and perception with the smallest operation of design and the least increases of element. The sawtooth roof extends to the sky and the skylight invites the sunlight into the room with the light and shadow switching; the openings of the four external walls are different, which responds to the different surrounding environment, the design intends to create rich spatial levels to implement the possibility for people to stay and communicate by the openings, the garden and the gray space under the awning, which can transform the original productive house into a community building.
A high main partition wall divides the internal space into North and south. The nondaily scale of the high large space on the north side is conducive to the transformation of people's state, and the enlarged per capita space volume give people’s mind a certain space; The south side is divided into two layers. The space near human scale is close to the small square, and the main entrance is also placed on this side, expressing the basic position of looking forward to communication.





















