NJIT Makerspace Lab – New Jersey Institute of Technology
Newark, USA
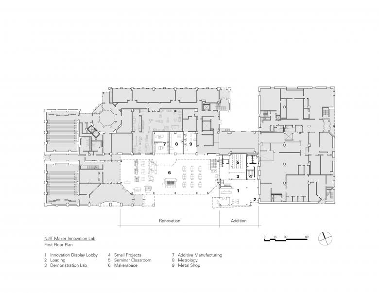
The NJIT Makerspace Lab is an addition and renovation to the Guttenberg Information Technology Center and is designed to support innovative interdisciplinary programs that promote entrepreneurship. The 14,000-square-foot lab is a resource for students and faculty to develop theoretical concepts into marketable prototypes. The program and design of the Makerspace lab promotes collaborative creativity through interdisciplinary teamwork using a variety of digital mediums and mechanical tools. The Makerspace is an open workspace and lab for students and faculty to engage in innovative and entrepreneurial activities. It provides seminar, training, and breakout rooms for group work; fabrication spaces for 3D printing, laser cutting, and printed circuit board (PCB) creation; and metrology and metal shops and assembly testing rooms, all to create prototypes and enhance creative collaboration. The interior reflects the activities of the academic program: inherently flexible for reconfiguration, adaptable for multiple applications, and industrial for durability. The transparent exterior façade in this centrally located site displays the innovative activities within and engages the entire campus and community. The Makerspace Lab hosts diverse social, training, and lecture events throughout the year that bring students, faculty, and industry partners together across disciplines to learn and socialize.
- Architetti
- ikon.5 architects
- Anno
- 2020
- Stato del progetto
- Costruito
- Owner's Representative
- Cambridge Construction Management
- Structural Engineer
- CEC Consulting Engineers Collaborative
- Civil Engineer
- Bowman Consulting Group
- MEP/FP Engineer
- Keri Engineering
- Security Consultant
- Shen Milsom & Wilke












