Nord 7
Im Rahmen eines Planerauswahlverfahrens für das Baufeld 7 am Areal des ehemaligen Nordbahnhofs in Wien wurden wir mit der Ausführung zwei gegenüberliegender Bauteile beauftragt. Das Baufeld zeichnet eine zweizeilige Gebäudeanordnung aus, die als durchlässige Filterschicht zwischen der Stadt und der öffentlich genutzten »freien Mitte« nahe den Gleisen dient. Das Volumen der straßenseitigen Gebäudezeile wird durch Höhenstaffellung einzelner Bauteile und Rücksprünge klar strukturiert. Großzügige Durchgänge öffnen den Blockrand und lassen Blickachsen ins Grün quer durch das Wohnquartier zu.
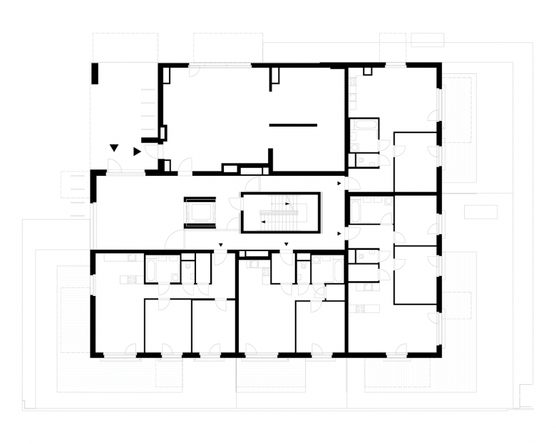
In unserem Entwurf ordnen wir die 46 frei finanzierten Wohneinheiten in acht Geschoßen um ein besonders kompaktes, zentrales Stiegenhaus an und verzichten auf natürliche Belichtung, um den Wohnraum zu maximieren. Wir installieren großformatige Lichtwände, die den Innenraum in atmosphärisches Weiß tauchen, und führen damit die Außengestaltung des Gebäudes im Inneren weiter.
Die elegante äußere Erscheinung basiert auf einer konsequent monochromen Ausführung von Fassade und Balkonen, die in ihrer variantenreichen Ausformulierung aber anders als ein kühler, modernistischer Wohnkubus, Individualität und damit menschliche Wärme ausstrahlt.
Mit einem dezenten farbigen Akzent betonen wir die Mitte der Gebäudezeile. Die ingesamt 52 geförderten Wohnungen sind mit großzügigen Balkonen in zwei Ausführungen ausgestattet. Eine Variante ist zu den Seiten hin einsichtig, die zweite nach vorne. Auf der Hofseite kombinieren wir beide Varianten, um unterschiedliche Aufenthaltsqualitäten und Nutzungsmöglicheiten zu schaffen. Straßenseitig kommt ausschließlich die weniger einsichtige Variante zum Einsatz.
- Architetti
- synn architekten
- Anno
- 2022
- Stato del progetto
- Costruito
- Cliente
- ÖVW Österreichisches Volkswohnungswerk Gemeinnützige GmbH
- Team
- Carla Lo Landschaftsarchitektur

















