Office Weirather Wenzel & Partner 2
Barcelona, Spain
The project begins with the task from the Company WWP to design their second offices in Barcelona. To reduce the cost and the environmental impact, most of the furniture is recycled from the first offices and its move keeps the original atmosphere of the space.
The working chairs and desks, the wooden doors surrounding the place with its shelfs and closets, the bar and stools are replaced in the new office.
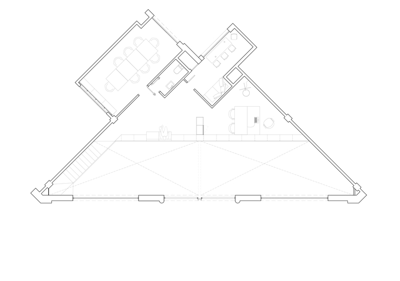
The special triangle geometry of the floorplan shapes the setbacks on the ground floor which includes room for the toilette, kitchen and storage. The main working desks are in the double height space to receive the most natural light possible and the meeting rooms are located in the first floor.
Its table is designed as a modular item which can modify the length depending of the need and a drawer is placed bellow the table with an opening in the center where you can put the cabling, normally annoying on meeting situations.
- Architetti
- sandy brunner Architecture
- Anno
- 2017
- Stato del progetto
- Costruito
- Cliente
- Weirather Wenzel & Partner
- Team
- Sandy Brunner

















