Plenarsaalgebäude Hessischer Landtag
Schlossplatz 1-3, Wiesbaden, Germania
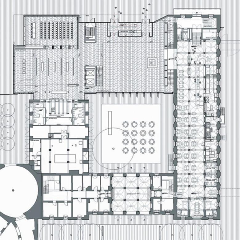
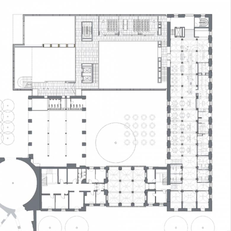
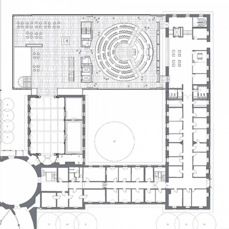
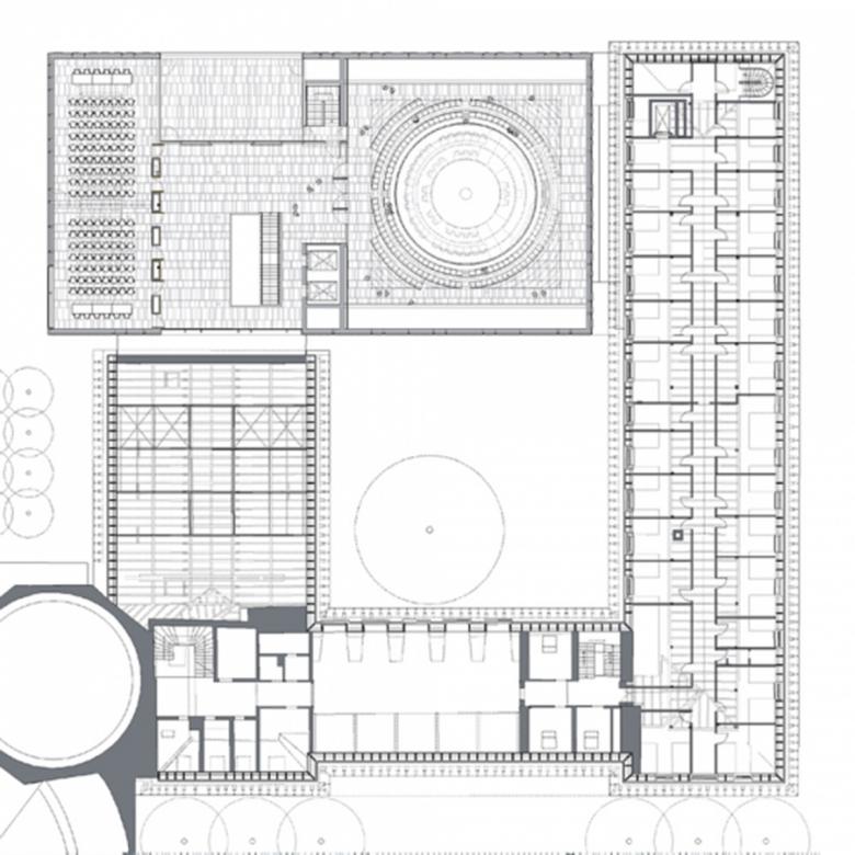
’Der Neubau des Plenarsaalgebäudes des Hessischen Landtages besticht durch die Einfachheit seiner Großform. Es gelingt ihm, seine Umgebung neu zu ordnen und wie nebenbei mit seinen Kanten klare Stadträume zu definieren. Auf den städtebaulichen, in seiner Maßstäblichkeit überaus heterogenen Kontext mit einer sehr plastischen Gestaltung des Baukörpers zu reagieren, erweist sich als äußerst wirkungsvoll. Der Dialog mit der vorhandenen historischen Bebauung, der aus einem Verständnis einer zeitgemäßen, modernen Architektursprache geführt wird, trägt zum überzeugenden Gesamteindruck bei.’
- Architetti
- Waechter + Waechter Architekten
- Anno
- 2008
- Stato del progetto
- Costruito
- Cliente
- Land Hessen endvertreten durch Staatsbauamt Wiesbaden
- Wettbewerb
- 2001, 1. Preis
- Wettbewerb
- 2008, BDA-Hessen J.-W.-Lehr-Plakette
- Besondere Anerkennung
- 2008, Vorbildliche Bauten in Hessen
- Besondere Anerkennung
- 2009, Deutscher Natursteinpreis
- Engere Wahl
- 2011, Deutscher Architekturpreis
Progetti collegati
Rivista
-
La Costruzione della settimana
The Three-Body Problem: Trapped in a Wave Sandwich
Eduard Kögel, Scenic Architecture Office | 13.04.2026 -
-








































