Psychological Medical Center
C/Josep Maria Selva 2, VIC, Barcelona, Spain
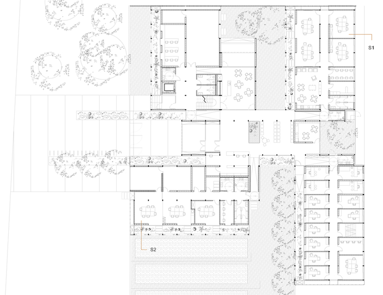
All the rehabilitation services for people with mental illness are grouped in this building composed by the repetition of a 6m wide spatial module. An economic and energy-sustainable constructions system, the domestic scale and the warmth of the interior spaces added to the closed relationship between building and nature makes it a HEALTHY BUILDING.
The building is located next to the main health centers of the city (Vic), surrounded by a park on the outskirts, and its program is basically developed on a ground floor to facilitate the mobility of its users.
Around a central acces pavilion are grouped the rest of pavilions with their specific program, adapted to the original terrain topography and separated from each other by gardens and orchards. The interstitial spaces between the acces and those perimeter pavilions are occuped by the connecting ramps.
The austerity of using a single cladding material for façades and roofs contrasts with the appearence of vegetable greenhouses on the south façades as a passive bioclimatic system and the use of wood as a main element in the interior spaces.
The building has an economical, modular and high efficiency energy system that allows the adaptation of energy demand according to the interior occupation and the external climate.
A 6m. with metallic structure every 2,40m. supports a lightweight, ventilated vaulted cover. The roof section allows to open the roof cavity in summer to ventilate it and close it in winter to mantain the heat and radiate it towards the interior.
The vegetable greenhouses on the south façades are a passive bioclimatic system. These spaces have a practicable closure based on ultraviolet protected pvc curtains that can be closed in winter to accumulate heat (introduced to the interior through the ventilation system) or opened in summer leaving the porch exposed as a sun protection element. The vegetation in these spaces is cultivated by the patients themselves as a rehabilitation therapy.
The sustainability criteria have been essential during the construction process. The Energy Certification places our building in the “A” category, the most efficient.
- Architetti
- Comas-Pont Arquitectes
- Anno
- 2016
- Stato del progetto
- Costruito
- Program
- Psychological medical centerProgram Psychological medical center
- Size
- 1.657 m2
- Project Team
- COMAS-PONT ARQUITECTES SLP
- Collaborators
- Anna Prat, Maria Camps
- Consultants
- Manuel Arguijo i associats, La Vola 1981 S.A., SIS consultoria acústica, Vinclament slp

















