Punto Surf
Guadalajara, Mexico
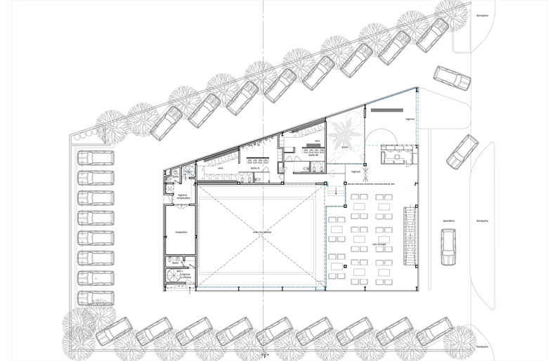
Punto Surf es un proyecto que nace del deseo de ofrecer un lugar donde se pueda practicar el surf dentro de la ciudad. Ubicado en Av. Acueducto se conecta con dos centros comerciales y con Av. De la Patria, una de las principales arterias de Guadalajara. Cuenta con una superficie construida de 732m2,. En planta baja se encuentra la recepción, area lounge, vestidores, baños, y el área recreativa que cuenta con una doble altura. En planta alta se proyectó un restaurante, bar, y las oficinas de administración. La fachada está recubierta por una piel de lámina ondulada en la parte superior y una base sólida de concreto.
- Architetti
- Elias Rizo Arquitectos
- Anno
- 2011
- Stato del progetto
- In costruzione







