Rathaus Garbsen
Garbsen, Germania
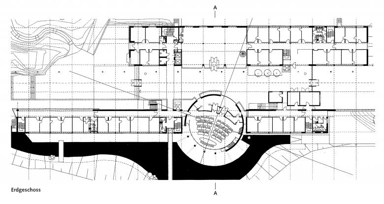
Das Rathaus ist Auftakt sowie räumliches Rückgrat des neuen Stadtquartiers. Eine zwischen zwei massiven Baukörpern stehende gläserne Halle bildet das Herz des Gebäudes. Sie wird zu einem urbanen Platz mit eingestellten Baukörpern, Brücken, Plätzen und Wegen und führt den öffentlichen Raum durch das Gebäude hindurch.
Zur vielbefahrenen Berenbosteler Straße wird die Halle durch einen sechsgeschossigen Riegel abgeschirmt. Er beherbergt den Hauptteil der Verwaltung. Ihm gegenüberliegend flankieren zwei langgestreckte Riegel eine Rotunde, in der sich der zweigeschossige große und der darüberliegende kleine Ratssaal sowie eine tine im Basisgeschoss befinden.
- Architetti
- Schneider + Sendelbach
- Anno
- 1998
- Stato del progetto
- Costruito
















