Sanierung und Aufstockung Herderschule
Am Kapellberg 1, Darmstadt, Germania
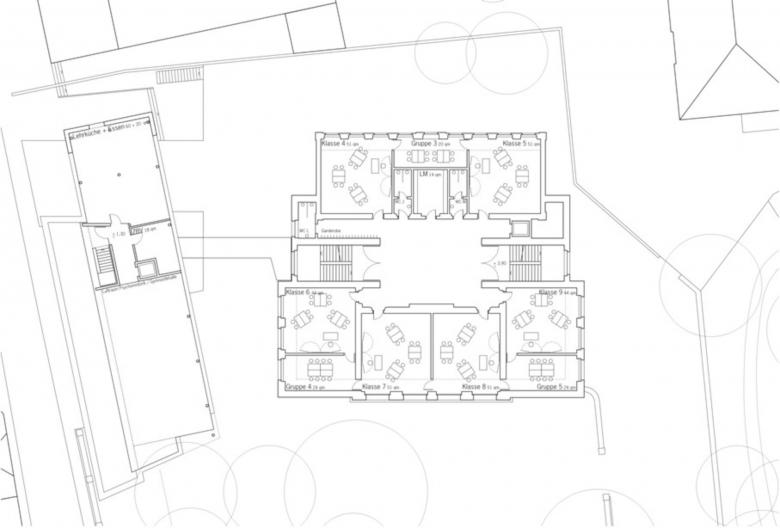
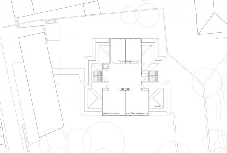
Das neue Kupferdach stellt den würdevollen Abschluss des Baukörpers wieder her, ohne das Vergangene zu zitieren. An den Längsseiten werden die Dachflächen raumhoch aufgefaltet, so dass durch die schaufensterartig verglasten Öffnungen die Räume einen atemberaubenden Blick auf Bessungen und die angrenzende Petrusgemeinde bieten. Die neue Dachmodulation mit den Öffnungen interpretiert unter Berücksichtigung der engen Vorgaben des Bebauungsplans die kriegsbedingt zerstörte ornamentale Giebelseite neu.
- Architetti
- Waechter + Waechter Architekten
- Anno
- 2020
- Stato del progetto
- Costruito
- Cliente
- Wissenschaftsstadt Darmstadt
Progetti collegati
Rivista
-
-
La Costruzione della settimana
The Three-Body Problem: Trapped in a Wave Sandwich
Eduard Kögel, Scenic Architecture Office | 13.04.2026 -
















