Science and Technology Centre

Kharkiv, Ukraine
STC Closed Lab, Interior View
Visualizzazione © Anhelina L. Starkova

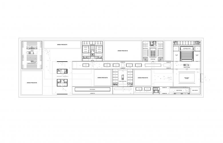
The science and technology centre is a landscape building ensemble, realized as an architectural scientific place that provides an open house for the Ukrainian scientific community. The building's composition controls laboratories, meeting and conference halls, a public digital library, and diversified office spaces that function in connection with a united leveled-up landscape green media belt. The media platfrom or media belt is an entrance public line and a connector that provides easy communication between different buildings of the whole ensemble. As an informative transmitter media beld brings public activity and promotes a complex program of the STC building over the local region. Such a belt aesthetically enriches the public architecture of the place and functions as a contemporary industrial attractor. Seasonal over-roof space could be re-designed and expanded depending on the program's needs. The project was a private commission in the frame of a regional development program and planned for a realization in the 2025 year.

STC Floor Plan
Disegno © Anhelina L. Starkova
Architetti
Anhelina L. Starkova
Anno
2016
Stato del progetto
Progetto

Progetti collegati 

  • Moos
    playze
  • Reiters Reserve Premium Suiten
    BEHF Architects
  • Erweiterung und Instandsetzung Hallenbad Altstetten
    MIYO Visualisierung
  • Neubau von fünf Einfamilienhäusern
    Bäumlin+John AG
  • The Forge in der 105 Sumner Street in London
    Kiefer Klimatechnik GmbH

Rivista 

Altri progetti di Anhelina L. Starkova 

Groundform 15
Opera Dome Foyer
Used: Matter Reassembled
RFF edited by Anhelina L. Starkova
The House for Two
Le Havre, Francia