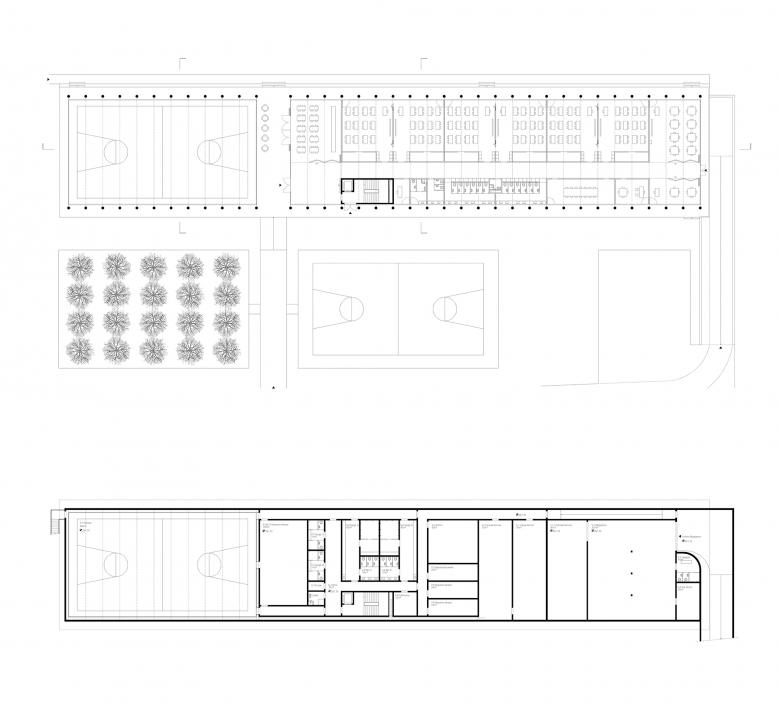
Scuola Elementare e Palestra
Magliaso, Svizzera
- Architetti
- Durisch + Nolli Architetti
- Anno
- 2020
- Stato del progetto
- Progetto
- Cliente
- Comune di Magliaso
- Team
- Aldo Nolli, Pia Durisch, Francesco Nozzi, Francesco Parisi
- Ingegnere Civile
- Lurati Muttoni Partner SA
- Architetto Paesaggista
- De Molfetta & Strode Landscape Architects










