Shadow House

Carrer Sitges, Abrera, Spain

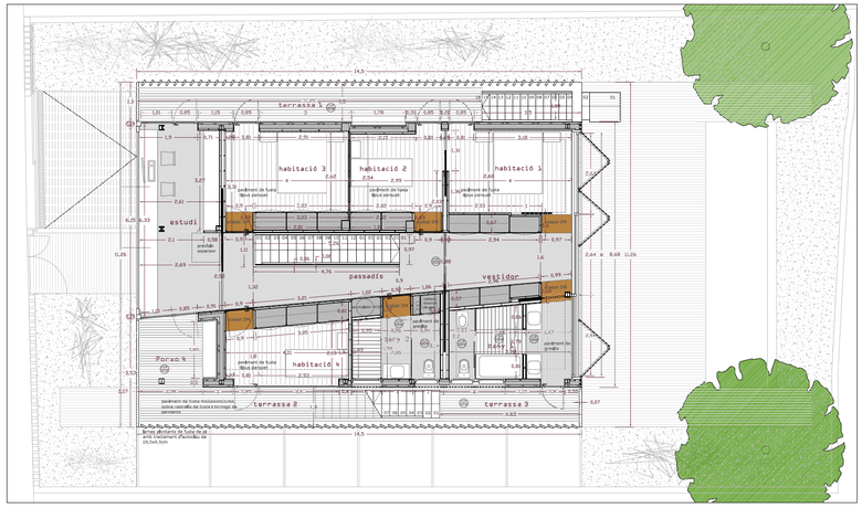
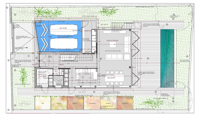
House clearly divided in two areas, a ground floor connecting with all the exterior, and an upper level that searches for a great deal of privacy from the neighbours. The house follows the main entrance axis as an excuse to relate to the exterior. Lateral facades happen to be more eclectic and neutral. Trying all time to disallow the others to know what’s going on inside. Lower program is dedicated to day related activities, leaving the upper level to bedrooms and a common open–studio space. The roof is proposed as an open and active roof, for the users to enjoy the Mediterranean climate.

Architetti
Jon Tugores + Architects
Stato del progetto
In costruzione

Progetti collegati 

  • Moos
    playze
  • Reiters Reserve Premium Suiten
    BEHF Architects
  • Erweiterung und Instandsetzung Hallenbad Altstetten
    MIYO Visualisierung
  • Neubau von fünf Einfamilienhäusern
    Bäumlin+John AG
  • The Forge in der 105 Sumner Street in London
    Kiefer Klimatechnik GmbH

Rivista 

Altri progetti di Jon Tugores + Architects 

CFv01 House
Sitges, Spain
Masia Freixa V3.0 Food Laboratory + Restaurant by Chef Carles Tejedor
Terrassa, Spain
Social Housing for Young People
Montgat, Spain
To-De House
Sant Pere de Ribes, Spain
EEC Church
Castelldefels, Spain