Sportpark Freiham
Hans-Dietrich-Genscher-Straße 11–15, München, Germania
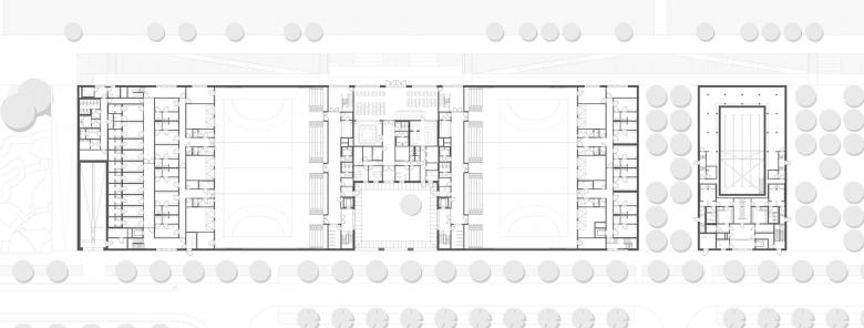
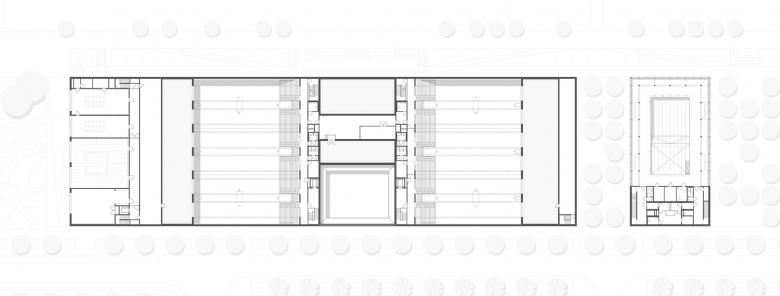
Mit dem neuen Stadtteil Freiham soll eine der letzten großen Brachflächen der Stadt München neu erschlossen werden. Der dem westlichen Stadtrand vorgelagerte Sportpark definiert dabei den Übergang vom Stadt- in den Landschaftsraum. Er ist dem Quartier als große öffentliche Promenade vorgelagert. Als solche bietet er eigenständige Aufenthaltsorte, die an das städtische Wegenetz anknüpfen und von hier zu den Freisportflächen bzw. in den angrenzenden Landschaftsraum vermitteln. Durch die topographische Herausarbeitung fügen sich die Baukörper und Freiräume zu einem terrassiertem Layout, das funktional und räumlich Beziehungen zwischen der Stadt und den Sportfeldern knüpft. Eine den Freisportflächen zugewandte Böschung stellt den Niveauausleich zwischen städtischer und landschaftlicher Ebene her und dient als „grüne Tribüne“ für die Außensportflächen. Sie definiert die Schnittstelle zwischen Stadt und Landschaft, Sportlern und Publikum, öffentlich und nichtöffentlich.
Dem Sportband liegt das Prinzip einer zweiseitigen Erschließung zugrunde, die es erlaubt, städtische Adressen für Sportvereine und Publikum straßenseitig anzubieten und gleichzeitig den Schülern eine sichere Erschließung vom benachbarten Schulcampus aus durch die vorgesehene Unterführung zu ermöglichen. Die Sporthallen und das Schulschwimmbad sind für den inklusiven Schul- und Freizeitsport konzipiert. Darum sind in Abstimmung mit der Landeshauptstadt München sämtliche Sportlerbereiche im Sinne einer inklusiven Teilhabe barrierefrei und für die Nutzung mit dem Sportrollstuhl ausgelegt.
- Architetti
- SCHEEL WETZEL ARCHITEKTEN
- Anno
- 2020
- Stato del progetto
- Costruito
- Cliente
- Landeshauptstadt München Baureferat Hochbau – H55, Landeshauptstadt München Referat für Bildung und Sport
- Team
- Inge Günther, Torsten Richter, Tobias Benjamin Bosse, Tabea Däuwel, Julia Hegenwald, Yanyi Hua, Gilta Koch, Jasmin Kunst, Diego Peña Jurado, Joanna Orlowska, Julia Seewald, Mengda Shi, Tereza Šváchová, Antje Utpatel, Elise Wicklein, Katharina Heinemann, Jianping Yan, Frank Zimmermann
- Landschaftsarchitektur
- Lützow 7 Müller Wehberg Landschaftsarchitekten PartG mbB














