Story
Tokyo, Japan
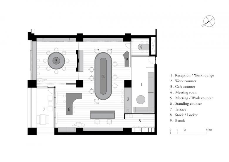
An office project for a video production firm. Located in a building in Marunouchi, Tokyo, the site had a nice atmosphere with a view of the zelkova trees lining the street from the windows. Through repeated dialogues with the client, we decided, first, not to give the space an office feel, and second, to create a “park-like” office space that would incorporate the creative atmosphere of the avenue.
The existing space has an opening for natural light and a terrace on the north side, and is a general office space with a pillar pattern at a fixed pitch. We first plotted necessary spaces for each zone, taking this pillar pattern into consideration. More specifically, we laid out a sofa space that can be used as a reception area and a work lounge at the entrance, a main workspace, a café counter, a small private room for meetings, a multi-purpose workspace that can be used for meetings by using partitions, and a standing counter right next to the terrace.
Essentially, the office is designed to be used on a free-address basis, with each person being free to use the space as he or she sees fit. The form of the furniture placed in each space were naturally derived from its function, while plotted in a landscape approach, much like objects scattered throughout a park. Black artificial marble was used for all table tops, creating a sense of unity even though each has a different shape. Douglas wood for the flooring material, wicker mesh furniture and sofa upholstery were used, adding a sand beige color to the palette, combined with the gray walls to keep the overall balance in color tone. At the client’s request, library storage for their inspirational art books and walls for displaying artwork were planned in various areas. The office is like a park or a plaza, but also like a gallery. We sought an office space with a sense of freedom and stability suitable for their creative activities.
Client: STORY Inc.
Type of Project: Interior
Use: Office
Period: Oct 2021 – May 2022
Floor Area: 211.34m2
Location: Tokyo, Japan
Design: Koichi Futatsumata, Koichi Shimohira, Kana Yamamoto (CASE-REAL)
Cooperation: TANK
Lighting Plan: Tatsuki Nakamura(BRANCH LIGHTING DESIGN)
Manufacture, Coordination of Furniture: E&Y
Grafitti(Entrance door): Yoichiro Uchida
Photo: Daisuke Shima
- Architetti d'Interni
- CASE-REAL / KOICHI FUTATSUMATA STUDIO
- Anno
- 2022
- Stato del progetto
- Costruito

















