The planting terrace and the experience pavilion
With the advantage of geography, Shenzhen Shajing has largely developed the low-end manufacturing industry in the past two or three decades. The mass construction of factories not only destroyed the scenery wetland and farmland, but also brought chaos to the nearby suburb. Industrial parks and external urban spaces form negative places. In recent years, many residential buildings and schools were built around the industrial park. This project hopes to provide a dynamic public space for workers, residents, teachers, students and the plant lovers by reshaping of the green humanities space. With various experiential activities held in the space, the traditional planting culture of Shajing is passed down in a new form, which is also a media for community building.
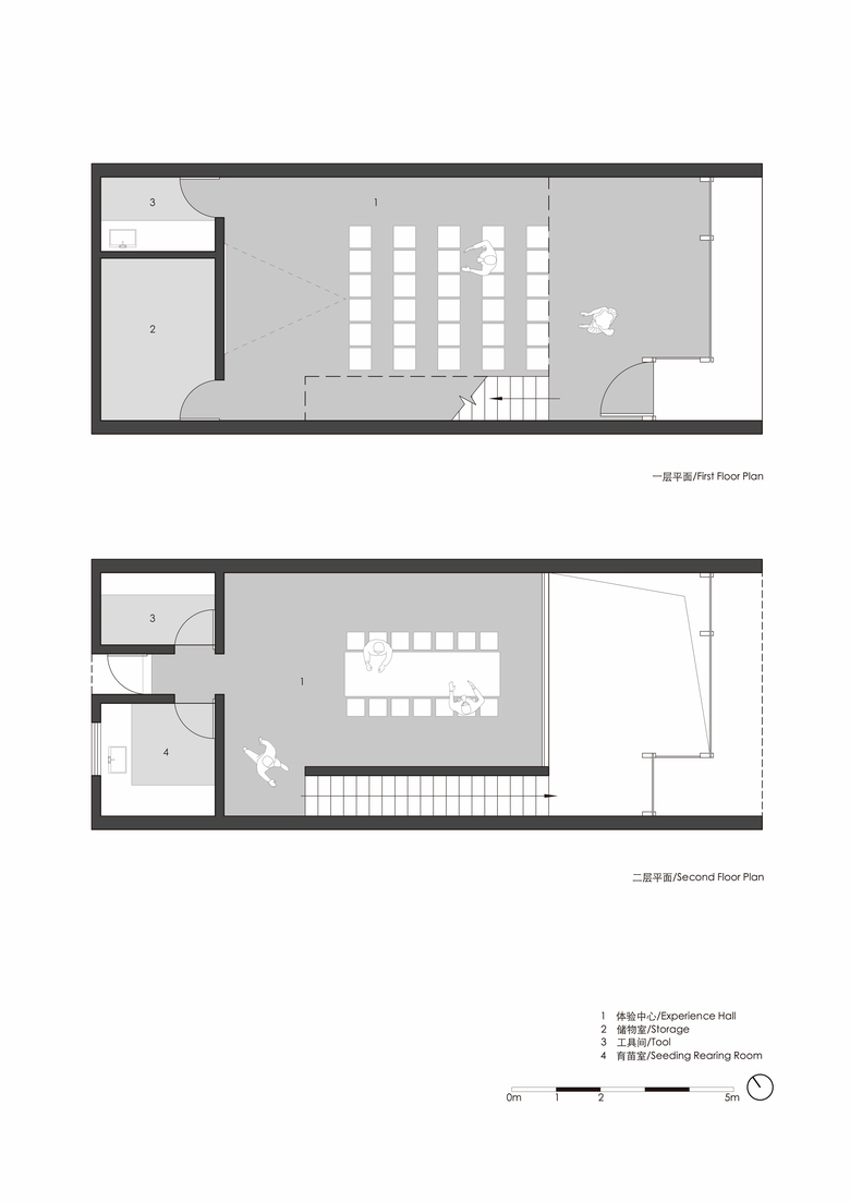
In the original site layout, there is an outdoor parking lot in the west next to the courtyard. In order to meet the demand for parking, and to improve the spatial quality of the courtyard, a large landscaped terrace was created which covers the parking lot. Connecting by the steps, this large terrace becomes the extension of the courtyard, with which the courtyard establishes the public space system of different levels, and the steps could provide seats for audience when outdoor activities are held in the courtyard. Concrete planting troughs are randomly placed on the terrace, where people can plant various crops and shrubs, depending on their individual preferences, so that these crops and shrubs create interesting and vivid landscape. The big hole on the terrace provides better sunlight for the parking lot below, and the cinnamomum camphora in the middle of the hole also provides greenery for parking. At the same time, in the northeast of the terrace, there is a planting pavilion made of exposed concrete, which brings plant lovers together to learn from one another. The first floor is a public space for exhibition, communication and lectures, while program of the second floor is a planting and training space. The two-storey height green vegetation wall exhibits various plants, while the two-storey height space becomes learning place for people to communicate and interact with each other. The cantilevered staircase and the hanging floor in the building make it light and delicate. At the same time, the two entrances with different levels in the building create a closer connection among the terrace, the interior space and the courtyard.
- Architetti
- MOZHAO ARCHITECTS
- Anno
- 2018
- Stato del progetto
- Costruito
- Cliente
- Shenzhen Jialingyu Industrial Limited Company


























