The Schlaue Haus
Schlossplatz 1, Oldenburg, Germania
The Schlaues Haus Oldenburg (Smart House Oldenburg), first and foremost, is a public building for the display of the surrounding region’s scientific expertise, as the „City of Science“. Situated in the city center, the building serves as an important venue for people visiting Oldenburg thanks in part to the tourist information center which is located at ground level. The idea of a „Smart House“ is reflected in the architectural concept of the building. It is energy efficient, sustainable and flexible, and, hence, able to suit all kinds of requirements.
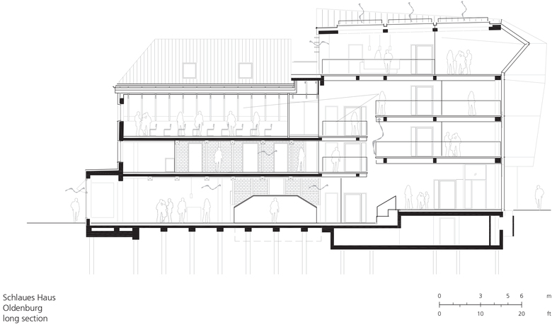
In planning, sustainability begins with the choice of the site. „Schlaues Haus“ is situated at „Schlossplatz“ right in the city center in a historic city district. It comprises the oldest building in town - a bourgeois edifice dating from the 16th century long since empty. The historic landmark has now undergone a renovation and expansion. Visitors embark on an architectural journey that encompasses five centuries of advancement & evolution in passing through the existing, old building to the modern, daylit structure. It is here that the crux of sustainability is centered - in the bracket that links the oldest building in town with the most progressive one - where the preservation and improvement of a historically-listed architectural landmark occurs in synergy with the successful implementation of innovative and progressive energy efficiency.
The ensemble consisting of the old building and the extension harmoniously fits into the surroundings. The dimensions of the quarter are referred to by the structure of the new part. The split level organization allows users to experience the transition between the existing building and new building through the use of projecting levels and voids.
The desire to create a passive intelligent building that optimizes use of daylight has guided the design of the Schlaues Haus addition. Facing Schlosspark, the innovative, new South facade, with its integrated sun protection, is one of the energy concept components. The building envelope was developed on the basis of energy and climate simulations, and thus ensures an optimum balance of solar gain in the summer with minimal heat loss in the winter. A daylight corridor serves as a solar chimney and supports the use of natural ventilation and fume exhaust. The energy for heating and cooling is generated with a heat pump and through the use of geothermal installations. Electrical power is produced by photovoltaic panels on the roof and facade.
Client
Schlaues Haus Oldenburg gGmbH
Architects
Behnisch Architekten
Stuttgart
Energy and environmental technology
TRANSSOLAR Energietechnik GmbH
Object supervision
Architekten Simon-Exner-Kersten
Structural planning
ARGE Bröggelhoff / Oltmanns
Building physics
Höfker Nocke Bückle Partnerschaft
Fire protection
TPG Lehmann
Maroff GmbH
Mechanical plumber engineer
Ingenieurbüro Ahrens GmbH
Acoustic planning
Akustikbüro Oldenburg
Electronic planning
Ingenieurbüro von Kiedrowski, Beratende Ingenieure GmbH
Planning and construction
2010-2012
Gross
1.150 m² / 12,380 sq.ft.
Volume
4.560 m³ / 161,035 cu.ft.
- Architetti
- Behnisch Architekten
- Anno
- 2012
- Stato del progetto
- Costruito













