青岛1903啤酒概念店
China
啤酒是最常民化的酒精饮料之一,青岛啤酒自1903年创办至今,每代人都会对其有着丰富的记忆。青岛1903啤酒概念店是一次品牌试验,为青岛啤酒这一深入人心的国产品牌再定义新的品牌形象、建立新的品牌体验。
项目地点位于北京望京麒麟社,是拥有丰富地域餐种的热闹街区,我们试图在复杂且活跃的餐饮集中地定义一个新的啤酒吧形式。不同于传统啤酒吧的热烈气氛,我们希望通过材料、色彩和光线,营造舒适轻松且并不喧嚣的场所氛围。利用对于啤酒的群体记忆与空间的关联转化——关于啤酒的生活记忆、啤酒的温度口感和饮酒的放松心境,建立新的空间体验,让人们对熟知的事物产生新的兴奋感和好奇心。
外立面上半部分为内外双层U型玻璃和植物塑造的悬浮景观空间,使室内空间在日间尽可能接受到过滤后的柔和阳光,并在夜间为室内外提供氛围照明。其下深度为2米的不锈钢檐贯通于立面,限定出廊式空间,结合材质本身对周围的漫反射,营造空间内外过渡的领域感。下半部分为一条通透的玻璃立面,对应功能,划分出折叠门、利于节能的双层入口门和大尺度上悬窗区域,整体立面可根据不同季节和活动需求关闭或打开,从视觉和使用弱化边界,提供内外流动的用餐体验。
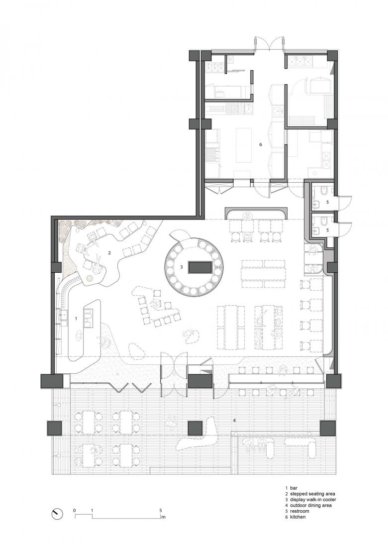
空间中心的圆形可视冷库作为空间装置成为视觉焦点,为餐厅提供20款啤酒,拥有数位化的酒头管理系统监测气体、温度、流速等参数稳定性,以确保每杯啤酒达最佳效果。环绕内部空间的吧台区域、阶梯区域、和沙发椅用餐区域利用曲线形态柔化了空间边界,赋予空间如液体般的流动性和场景感;适宜站立倚靠的曲线高桌和开放的阶梯区为聚会提供不同形式的群体场所,亦鼓励不熟悉的客人在此自然互动。 平面水磨石和立面水洗石的材料做法区分,让同种骨料在平立界面展现质感对比。我们希望通过从立面到室内材质本身的属性特征——不锈钢的反射性、玻璃的透明性、实木的稳重温暖、水磨石的平滑及水洗石的粗粝,在繁复的街区营造不具攻击性却饱有自我特征的独立场所。
- Architetti
- 即作建筑
- Anno
- 2021
- Stato del progetto
- Costruito
- Cliente
- 青岛啤酒
- Team
- 刘晨,赵丹、金韦希、赵炜



















