Umbau und Erweiterung einer Villa
Köln, Germania
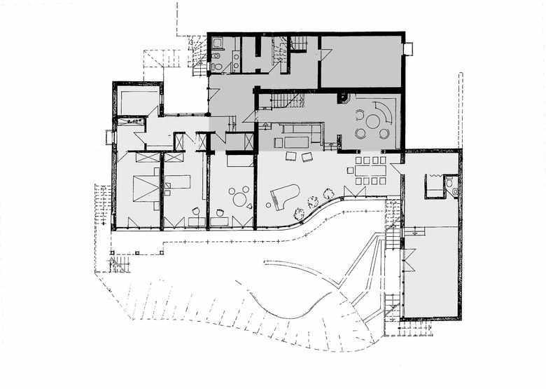
Im Jahr 1992 wurde das bestehende Haus auf die jetzige Nutzfläche von fast 500m² erweitert und umgebaut, ohne den ursprünglichen Landhausstil im äußeren Erscheinungsbild zu verändern. Das gesamte Untergeschoss wurde umgestaltet und vergrößert, dadurch ein neuer "Sockel" zum Garten geschaffen. Der ehemalige Wohnraum verbindet als Luftraum mit Treppe das Erdgeschoss mit den neuen, tiefer gelegenen Wohnräumen mit großen Glasfronten am Garten. Flankiert wird der Garten von einem neuen, verglasten Ateliergebäude.
- Architetti
- Schaller Architekten Stadtplaner BDA
- Anno
- 1992
- Stato del progetto
- Costruito











