Umbau und Renovation Hotel Peterhof

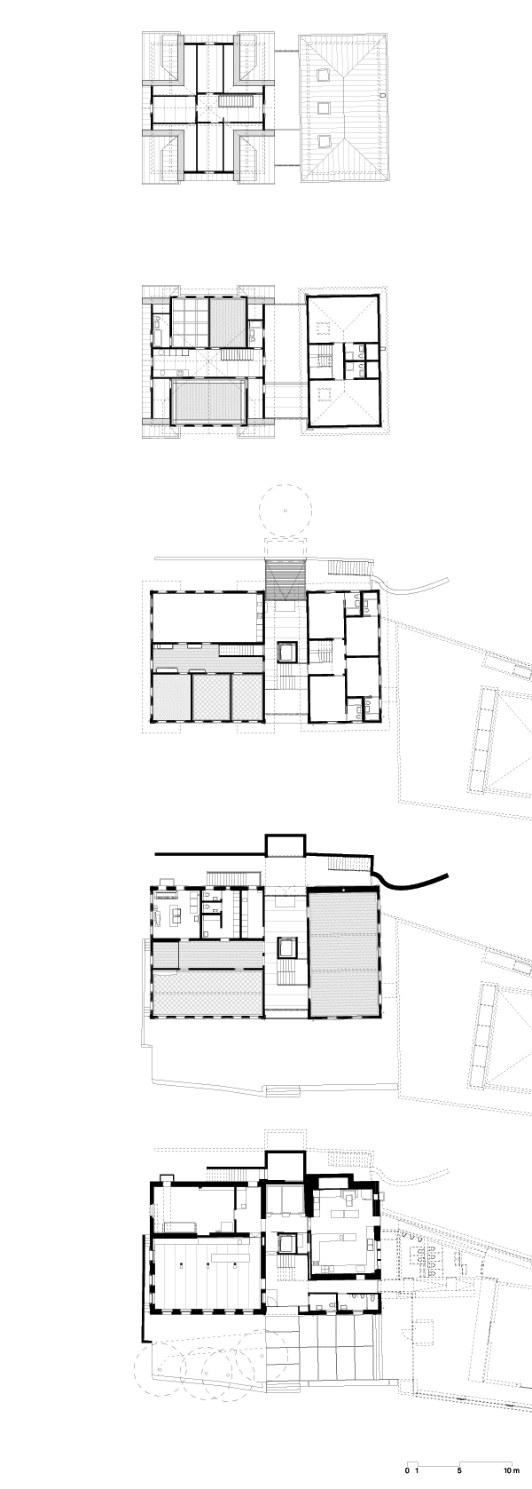
Der unter regionalem Schutz stehende Peterhof wurde im Kern um 1480 erbaut. Die Restaurierung entrümpelt sukzessiv erfolgte Erweiterungen. Eine Schlüsselrolle übernimmt der moderne Verbindungstrakt zwischen Haupt- und Saalbau (1891).

   Ansonsten verfolgt die Rückführung in den Zustand 1891 unter konsequenter Vermeidung von markanten Fassadenveränderungen das Ziel einer vom Bestand ausgehenden, ganzheitlichen Gestalt.

Architetti
Beda Dillier
Anno
2011
Stato del progetto
Costruito
Team
Roger Durrer, Beni Hess
Fotografien
Architekturbüro Beda Dillier, Sarnen

Progetti collegati 

  • Gymnasium Schulstraße
    Kronaus Mitterer Architekten
  • GROHE Water Experience Center
    D’art Design Gruppe GmbH
  • Limmatquai 4
    Kästli Storen
  • Volksschule Erlaaer Schleife
    Kronaus Mitterer Architekten
  • Ortsdurchfahrt Domat/Ems
    Luminum GmbH

Rivista 

Altri progetti di Beda Dillier 

Renovation Majorenhaus
Alpnachstad, Svizzera
Neubau Wohnhaus Sagengasse
Alpnach Dorf, Svizzera
Neubau Wohnsiedlung Brunnmatt
Sarnen, Svizzera
Temporärer Theaterpavillon Visionsgedenkspiel «vo innä uisä»
Sachseln/Flüeli-Ranft
Ersatzbau Einfamilienhaus Alpnachstad
Alpnachstad