Upper West Side Penthouse
New York, NY, USA
Fifty four floors high, with the Statue of Liberty, the horizon over Long Island and the whole of Central Park in view, this Manhattan penthouse architecture project offered extraordinary potential. Our clients had a vision for the space – clean design, a layout with the most panoramic views, and the celebration of a unique collection of Asian art. In this penthouse renovation, our client also faced a unique challenge.
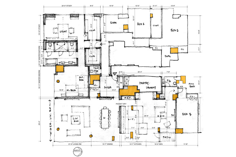
Our clients were moving to this 5,000 square foot penthouse from a suburban estate nearly four times as large, so our design needed to go beyond aesthetics to take advantage of every square inch and incorporate amenities typically found in much larger homes. Our team worked closely and collaboratively to bring this vision to life.
Penthouse architecture demands unique consideration. A sense of openness and comfort are optimized not only by careful attention to layout, but also through the blending of materials and textures.
New room partitions were crafted of concrete with wood-grain textures. High-gloss ceilings and lacquer panel walls extend the impact of the floor-to-ceiling windows. A glass enclosed study provides acoustic separation with no interruption of the view. Stainless steel wall insets serve as ideal displays for South Asian sculpture.
To maintain the clean, unbroken lines, heightened attention to finish included camouflaged electrical outlets and concealed sound systems, detailed indirect lighting, and self-closing pocket doors. State-of-the-art audio-visual systems are concealed behind nearly invisible doors.
Plentiful pantry, storage, and closet space keeps clutter to a minimum, and tucked-away amenities abound: the mirror in the master bath is two-way, concealing a television behind; the wine refrigerator and water cooler disappear behind custom cabinetry and wall panels.
Kitchen cabinets are faced in back-painted glass. Other rooms feature meticulously selected and matched stone slabs, custom wood veneers, and linen wall coverings. And a final touch that only a penthouse can enjoy: skylights (with both sun-shades and black-out shades) in the foyer and den further flood the home with natural light.
- Architetti
- The Turett Collaborative
- Anno
- 2013
- Stato del progetto
- Costruito














