Hochschule Wismar Fachbereichgebäude Architektur + Design
Wismar, Germania
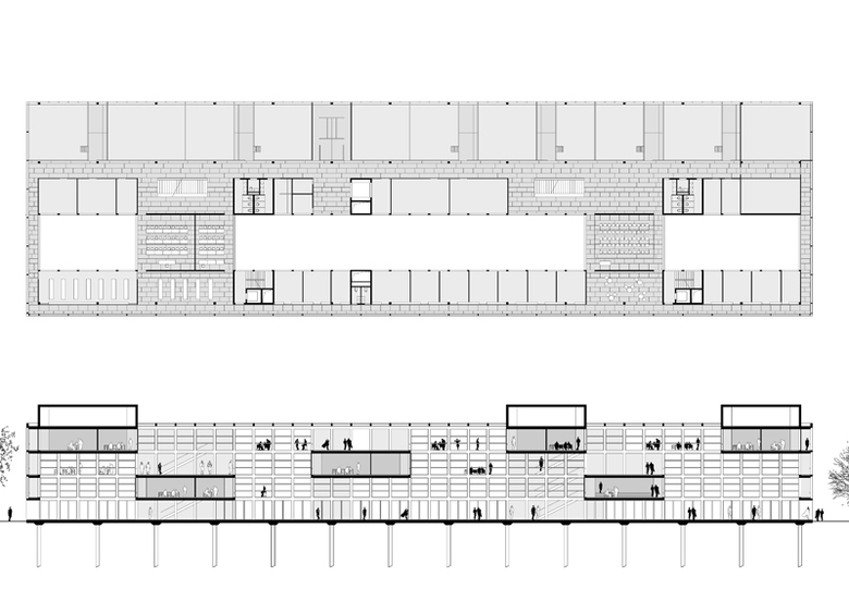
Mit dem neuen Fachbereichsgebäude für Architektur und Innenarchitektur/Design wird ein weiterer Domino-Stein in die bestehende Anlage eingefügt. Die Kompaktheit und Grösse des Volumens generiert dabei eine für den neuen Hochschulstandort Wismar in Massstab und Bedeutung angemessene Erscheinung. Die Breitseite des langen Baukörpers stellt sich der Tiefe der Lübschen Torweide entgegen und vermittelt als Botschafter der Hochschule über die Landschaftsbrücke hinweg zur Mutterstadt Wismar. Mit der schmalen Eingangsseite stösst der Baukörper an die neu geschaffene Plattform, die ihrerseits an alle zentralen Bauten anschliesst und deshalb das Aussenraumforum der Hochschule bildet.
Das Projekt wird aus dem Programm der Fachhochschule entwickelt, worin die drei Elemente Lehre + Forschung, Studium + Arbeit, Kommunikation + Wissensvermittlung als thematische Nutzungsgruppen erkannt und in drei linearen Gebäudezonen eingebunden werden, die aber mit eigenen Wegführungen separat zugänglich bleiben.
Das Erschliessungssystem ist eine räumliche Vernetzung der komplexen Funktionen und in der Ausformulierung gleichsam eine kleine begehbare Stadt, die mit ihren redundanten und transparenten Wegen eine mehrgleisige Erschliessung darstellt, eine Analogie zu den geistigen Freiheitsgraden, die für einen Hochschulbetrieb die Grundlage bilden. Die Übersichtlichkeit des räumlichen Stadtwegnetzes hilft der Orientierung innerhalb des Gebäudes. In allen Raumschichten und Geschossen ist ein Aussenbezug gewährleistet. Die Transparenz des Gebäudes soll Einsicht in das Arbeiten erlauben und ist darum Bestandteil und Ausdruck vom gegenseitigen Lernen. Sie ist Bühne und Schaufenster zugleich. Die Grenze zwischen Landschaft und Stadtraum wird mittels Transparenz und unterschiedlicher Schichttiefe des Gebäudes verwischt. Indem die Erschliessungswege dreiseitig der Fassade entlang führen, wirkt das Gebäude belebt und aktiv.
- Architetti
- Leuppi & Schafroth Architekten
- Anno
- 1996
- Stato del progetto
- In costruzione









