Wohnanlage Am Dorfbach
Hard, Austria
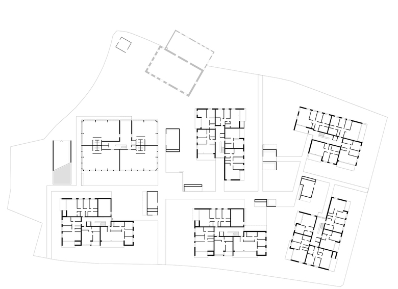
Fünf Wohnhäuser mit jeweils einer „fehlenden Ecke“ im rechteckigen Grundriss stehen verdreht zueinander am Grundstück, was nicht nur mit einer daraus resultierenden räumlichen Vielfalt, sondern auch mit dem Bezug zur dicht bebauten Umgebung des Harder Zentrums zu tun hat. Die Wohnungsgrundrisse sind entsprechend unterschiedlich und komplex, denn für jede Wohnung gelten andere Voraussetzungen. In einem sechsten Haus über dem vollständigen Rechteck sind gewerbliche Firmen und Dienstleister untergebracht, es dient als Vermittler zwischen „drinnen“ und „draußen“ und hält diese Grenze beweglich. Zugleich beginnt hier eine Abfolge von öffentlichen, halböffentlichen und privaten Räumen, Wegen, Höfen und Nischen – ein Dorf am Bach.
- Architetti
- Gohm Hiessberger Architekten
- Anno
- 2017
- Stato del progetto
- Costruito
- Cliente
- Zima Holding AG, I+R Wohnbau GmbH
- Team
- Landschaftsplanung Nicoletta Piersantelli
- Architekten
- Arge Gohm Hiessberger und Archetypen
Progetti collegati
Rivista
-
La Costruzione della settimana
The Three-Body Problem: Trapped in a Wave Sandwich
Eduard Kögel, Scenic Architecture Office | 13.04.2026 -
-
















