WOHNHAUS HOLBEINSTRASSE ZÜRICH
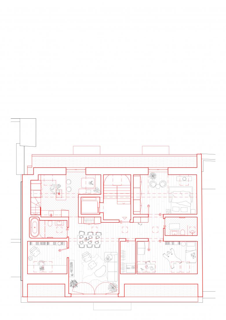
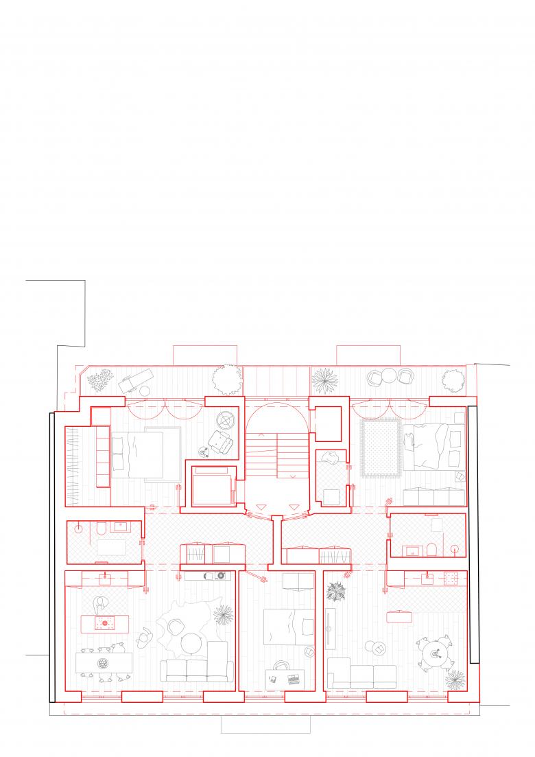
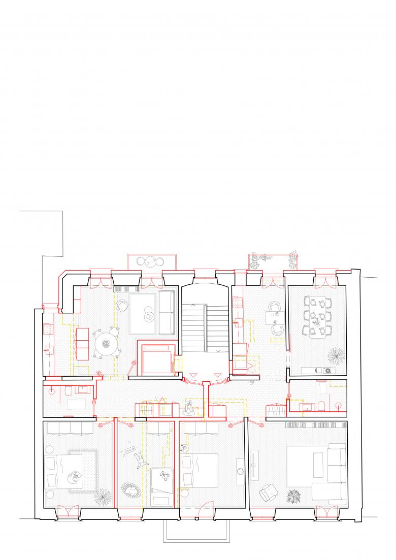
Das Wohnhaus an der Holbeinstrasse im Zürcher Seefeld aus dem ausgehenden 19. Jahrhundert bedarf einer dringenden und grundlegenden Sanierung. Im Zuge dessen wird die Grundrissstruktur an zeitgemässe Anforderungen angepasst und das Gebäude um zwei Stockwerke aufgestockt. Neben der energetischen Ertüchtigung und dem Gesamtersatz der Haustechnik mit Fokus auf erneuerbare Energien, werden unter anderem der Schallschutz verbessert, das schadhafte Tragwerk ersetzt und Massnahmen zur Erdbebensicherheit ergriffen.
Pro Geschoss enstehen je zwei Wohnungen. Die in den 1940er Jahren eingebauten Studiowohnungen werden zurückgebaut. Durch die Balkonanbauten an der Hofseite und eine Dachterrasse entstehen attraktive private Aussenräume.
- Architetti
- Nussbaumer Architekten AG
- Anno
- 2024-2026
- Stato del progetto
- In costruzione









