Wohnhaus in Küsnacht
Zürich, Svizzera
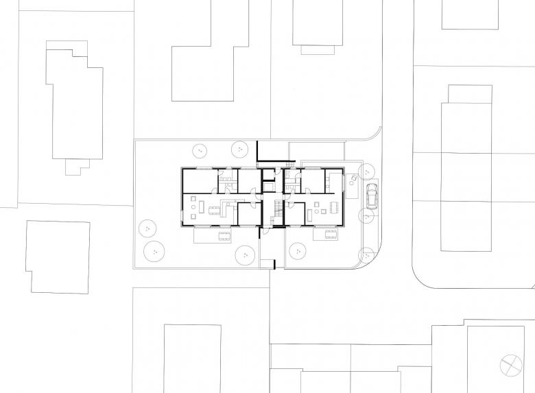
Vielgestaltige, in Ausdruck und Volumen unterschiedliche Bauten prägen das Quartier Heslibach. Der verputzte, gestufte Baukörper ist, obwohl eigenständig, zurückhaltend und vermittelnd in das bestehende Quartier eingefügt. Die fünf Wohnungen weisen unterschiedliche Qualitäten auf. In den beiden obersten Geschossen die grosszügige Maisonettewohnung mit direkt durch den Lift erschlossenem Attikageschoss, den zu Bergen und See ausgerichteten Terrassen und dem darunterliegenden Schlafgeschoss. Das unabhängig erschlossene Studio kann in die Wohnung integriert werden. Im Erdgeschoss und im 1.Obergeschoss befinden sich je zwei Geschosswohnungen mit grosszügiger Loggia bzw. Garten. Hecken, Loggien und Dachterrassen schaffen gut abgeschirmte private Aussenräume. Die Kompaktfassade mit horizontal abgezogenem Waschputz gibt dem Haus mit den dunklen Holz-Metallfenstern einen dem Quartier angemessen Ausdruck von unauffälliger Eleganz.
- Architetti
- ERP Architekten AG_____ egli rohr partner
- Anno
- 2007
- Stato del progetto
- Costruito
Progetti collegati
Rivista
-
-
-
La Costruzione della settimana
The Three-Body Problem: Trapped in a Wave Sandwich
Eduard Kögel, Scenic Architecture Office | 13.04.2026 -







