World Museum of Mining
“I imagined a labyrinth of labyrinths, a maze of mazes, a twisting, turning, ever-widening labyrinth that contained both past and future and somehow implied the stars.
- Jorge Luis Borges, Ficciones
Mining is physically demanding task; it involves circulation and movement, expansion and compression, and demands the use of all senses. Poetically alluding to a journey through the mine, our proposal utilizes materials and textures, spatial sequencing, and lighting techniques to guide the visitor through an impactful sensorial experience.
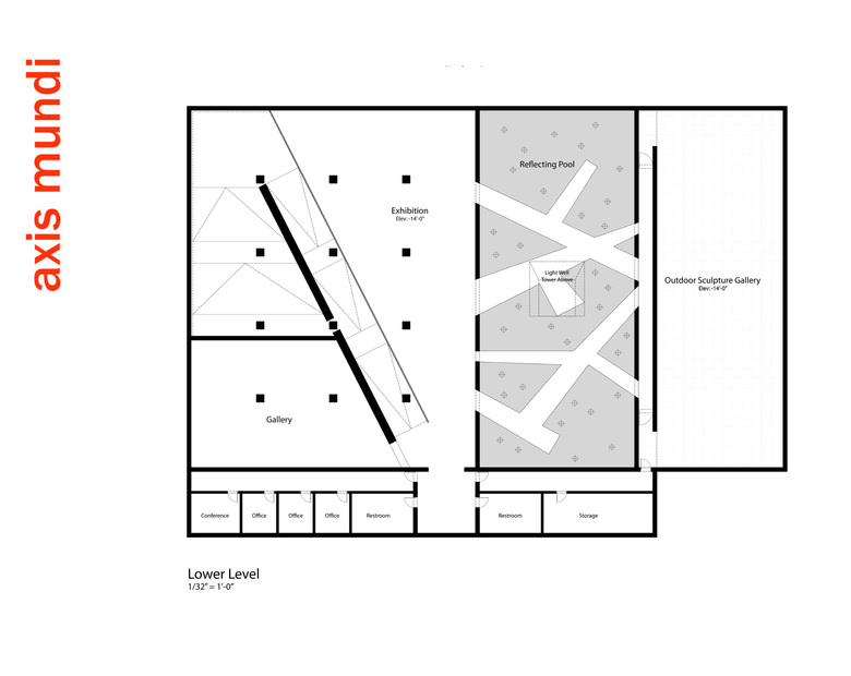
Upon entering the main pavilion, the tapered ramp gradually narrows as the visitor descends through the first gallery and below grade into the cavernous lower exhibition space. Controlled light, along with immersive, educational exhibits and artifacts engage visitors as they wander among the tall columns of the gallery, imagining themselves the miner and the exhibited materials their precious discoveries. Labyrinthine walkways guide the visitor through the dimly lit vastness of the mirrored gallery, where the tall tower, signifying a head frame, provides a distant light, suggesting the visitor is deep below grade. Providing a stark contrast to the expansive, dimly lit exhibition space, the excavated exterior sculpture garden provides space for the community; the void in the earth honoring the many miner’s lost and the unforgotten portion of American history, which our design seeks to preserve and enrich.
Design Team: John Beckmann, Hannah LaSota, and collaborating architect/artist Alex Schweder
Renderings: Catalin Sandru
Diagrams: Hannah LaSota
Total Area: 16,000 sq. ft.
- Architetti
- Axis Mundi
- Anno
- 2018
- Stato del progetto
- Progetto
- Team
- John Beckmann, Hannah LaSota, Alex Schweder










