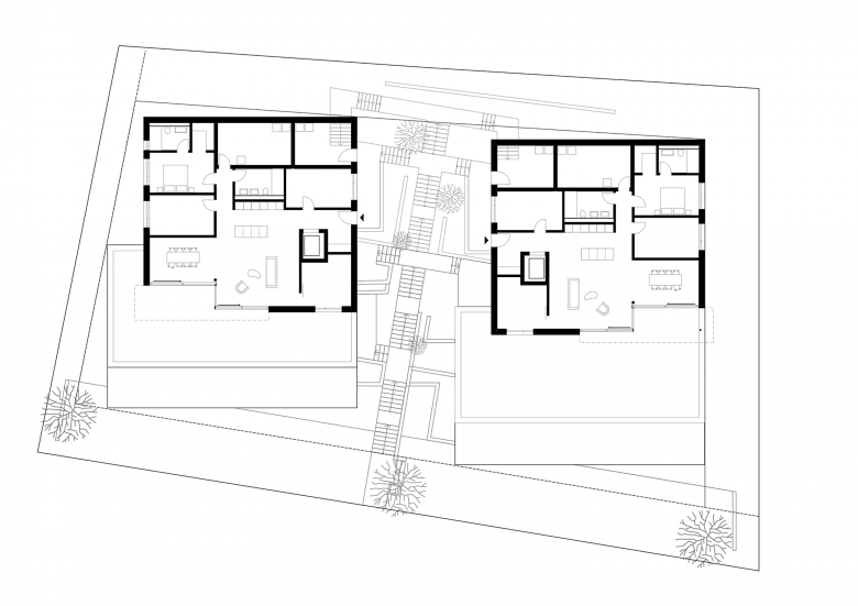
Zwei Terrassenhäuser in Erlinsbach
Brühlstrasse 73 / 75, Erlinsbach, Svizzera
- Architetti
- Husistein & Partner AG
- Anno
- 2024
- Stato del progetto
- Costruito
- Cliente
- Eglin Immobilien AG
- Baumanagement
- B&B Baurealisierung GmbH
- Bauingenieur
- Schüpbach Ingenieure AG
- HLKS-Planer
- Felix & Co. AG Haus- und Energietechnik
- Elektroplaner
- Eglin Services AG
- Bauphysik / Akustik
- Steigmeier Akustik + Bauphysik GmbH
- Geologe
- Dr. Heinrich Jäckli AG
- Umgebungsplanung
- Lehnert AG












