Zweifamilienhaus mit Einlegerwohnung
Untererlen, Svizzera
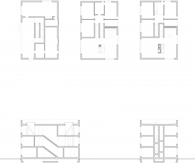
Das westlich von Emmenbrücke, in einer flachen Anhöhe über der Reuss gelegene, dreieckige Grundstück ist auf zwei Seiten mit mächtigen Eichen umgeben. Die Aufgabe bestand darin, unter Wahrung dieser inventarisierten Naturobjekte, ein kostengünstiges Zweifamilienhaus mit einer Einlegerwohnung zu projektieren. Mit einem einfachen, gewichtigen Kubus, welcher, um möglichst viel Platz vor dem Haus freizuhalten, ganz nah an die mächtigen Eichen herangeschoben ist, wurde versucht diesen mächtigen Bäumen ein entsprechendes Gegenüber zu geben und beiden Parteien die Qualitäten des Ortes gleichermassen zugänglich zu machen – den Garten mit der Weitsicht in die Landschaft, als auch den Ort unter den Baumkronen auf dem Dach des Hauses. Beide Wohnungen werden über eine gegen den Garten hin offene Loggia, welche als gemeinsamer gedeckter Gartensitzplatz genutzt werden kann, erschlossen. Gegenläufige Treppen führen durch die jeweiligen Wohnungen auf die von Baumkronen geschützte Dachterrasse.
- Architetti
- Albi Nussbaumer Architekten BSA/ETH/SIA
- Anno
- 2001
- Stato del progetto
- Costruito
- Cliente
- Privat
- Team
- Aldo Buffoni, Christoph Flury
- Architekt
- Dettli Nussbaumer











