TIAGO SELECT / RESTAURANT

Foto © ZHANG HUI 张辉

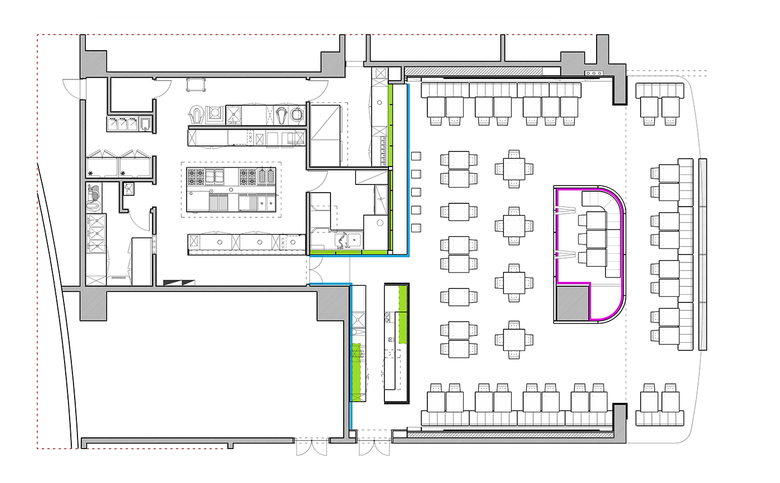
TIAGO SELECT is a 250 m² restaurant in the core of a fashion district in Beijing. Space has been conceived as secret den to discover, where hidden urban sub-cultural events may happen at any time. Design of the space is inspired by cyberpunk imaginary, with neon lighting, metal reflection, iridescence and fluorescent vibrations. Reminiscences of international backgrounds celebrate the European culinary culture in an environment rich of sophisticate references and designed for the youngest generation of Chinese. Straight lighting lines are crossing the steel corrugated ceiling, dotted by floating neon signs suggesting possible future destinations. Two large three-dimensional sculptural maps, made of assembled parts of European cities, are defining the main walls on both sides. A semitransparent mysterious box dominates the space with its surface of perforated aluminium plates, enclosing a detached room with a romantic effect of a lighting rain from above. The back wall contains all technical spaces: it is a large and darker surface of regular square tiles enlighten by fluo colored silicon grout lines. Glowing acrylic lines are framing thin metal plate shelves defining the kitchen’s entrance and functional spaces of pizza area and cocktail bar. Art installations, lighting and furniture have all been custom-made. Anodized titanium coating has been applied on steel chairs to create vibrant ever-changing reflections based on a rainbow palette of colors.

Team RAMOPRIMO
Architects Marcella Campa, Stefano Avesani, Lisa Montanari, Sara Scotti, Huo Ran 霍燃
On-site manager Sun Yuan孙园
Location Beijing, China
Function restaurant
area 250 sqm
Type built
Client Tiago Group
Year 2018, September
general contractor Ma Baoquan 马宝泉
Engineering Li Yongqi李勇奇, Zhang Hongyuan章洪源, Wei Zhongzhou魏中州
Artwork Instant Hutong / Ramoprimo
furniture design Operagamma / Ramoprimo / Sun Yuan孙园
furniture fabric Irisun
Photo credits RAMOPRIMO + Zhang Hui 张辉

Foto © RAMOPRIMO
Foto © RAMOPRIMO
Foto © ZHANG HUI 张辉
Foto © ZHANG HUI 张辉
Foto © ZHANG HUI 张辉
Foto © ZHANG HUI 张辉
Foto © ZHANG HUI 张辉
Foto © RAMOPRIMO
Foto © ZHANG HUI 张辉
Foto © ZHANG HUI 张辉
Foto © ZHANG HUI 张辉
Foto © ZHANG HUI 张辉
© RAMOPRIMO
Foto © ZHANG HUI 张辉
Foto © ZHANG HUI 张辉
© ZHANG HUI 张辉
Foto © ZHANG HUI 张辉
Foto © ZHANG HUI 张辉
© RAMOPRIMO
© RAMOPRIMO
© RAMOPRIMO
© RAMOPRIMO
Foto © ZHANG HUI 张辉
Anno
2018
Stato del progetto
Costruito

Altri progetti di RAMOPRIMO 

MOMA CHENGDU / MUSEUM
LEEGE / OFFICE SPACE
Beijing
DOUBLE HAPPINESS / URBAN PROJECT
COTTON REPUBLIC / STORE
Beijing
BUONA BOCCA / WINE BAR
Beijing