Wohnungsbau Ried Baufeld B
Der Siedlungsraum des Baufeldes B ist mit seinem vielfach gegliederten Quartierhof eine veritable Nachbarschaftsmaschine am Grünen. Alle architektonischen Elemente, die sich ausserhalb der Gebäudekörper befinden, sind aus vor Ort gemauerten Backsteinelementen hergestellt. Dies erzeugt eine starke Identität und signalisiert eine hohe Wertschätzung des kollektiven Lebensraumes.
In den lang gestreckten, platzartigen Höfen kann sich das soziale Leben des Quartiers voll entfalten. Sie sind offene Gefässe für Spiele, Treffen und Feste. Als durchgehender Belag wird gelber Mergel verwendet. Die Hauptverbindungen sind als Ortbetonbelag mit feinem Besenstrich materialisiert und führen zum Gemeinschaftsraum, welcher sich am Ende des Innenhofes befindet und zum Wald ausgerichtet ist. In den vorspringenden Hofbauten sind für die jeweiligen Wohnhäuser die Waschküche, Kinderwagen- und Veloräume platziert. In den Obergeschossen wird das Angebot mit einzelne Studio-Ateliers ergänzt. Diese Backsteinvolumen strukturieren den Siedlungsraum und schaffen klare Adressen.
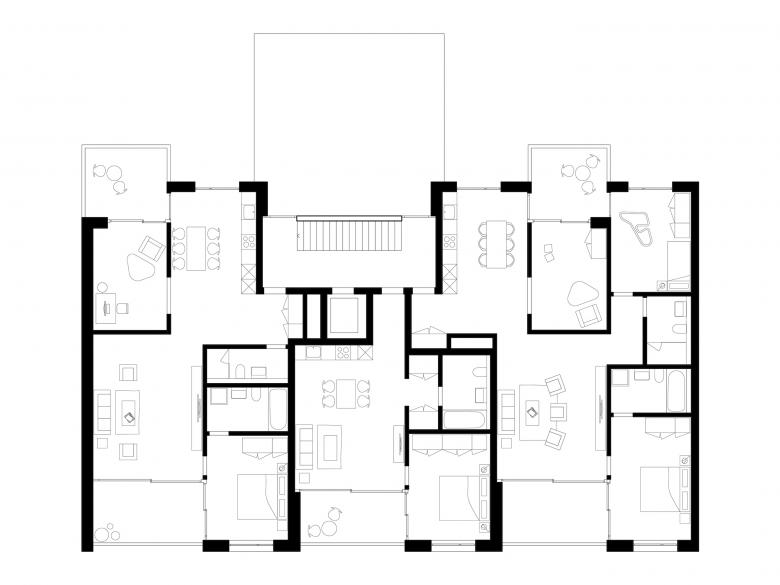
Tröge aus Beton schaffen einen graduellen Übergang vom kollektiven zum privaten Aussenraum. Sitzgelegenheiten bieten Raum für Begegnung. Die Bepflanzung durch Blaseneschen stiftet Identität und kreiert eine malerische Atmosphäre. Die Wohnungen werden direkt aus der Logik des Masterplans abgeleitet: Jeder wohnt am Grünen. Die Ost-West-Orientierung ermöglicht Grundrisse mit durchgehenden Wohnbereichen, um sowohl von der weiten Landschaft wie auch von der Qualität des Quartierhofes zu profitieren.
- Anno
- 2022
- Stato del progetto
- Costruito
- Cliente
- Anlagestiftung der Migros-Pensionskasse Immobilien
- Auftraggeber
- Marti Gesamtleistungen AG
- In Zusammenarbeit mit
- Hildebrand Studios AG











