Med Campus Wien
Projektwettbewerb 2018, 4. Preis
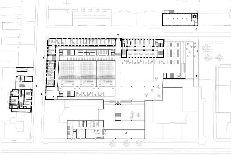
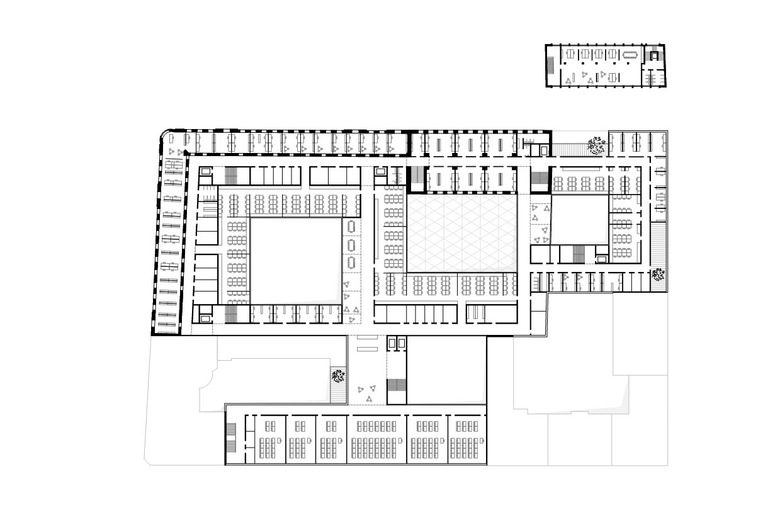
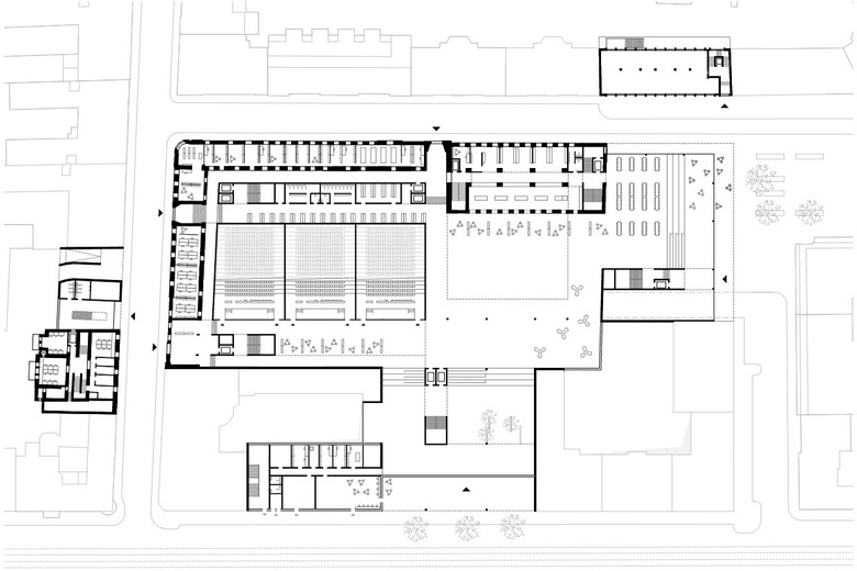
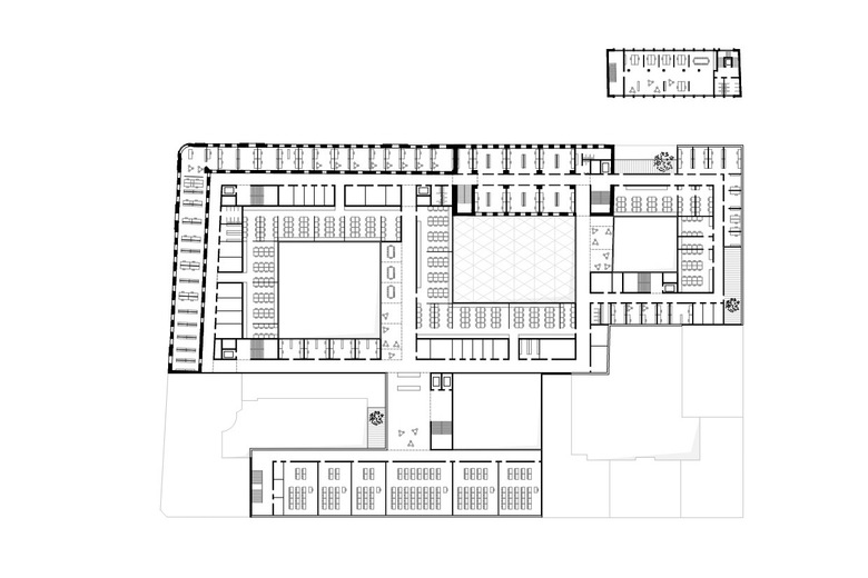
Aufbrechen & weiterbauen: fünf in sich verwobene Baukörper als ein präzises Implantat innerhalb der historischen Blockrandbebauung von Wien - perfekt integriert und bestmöglichst offen zur Stadt. Eine Rue Intérieur führt durch das ganze Gebäude, ein Verbund großzügiger, von Licht durchfluteten Raumfolgen mit Foyer, Aula und Mensa – die Vorplätze machen den Auftakt für sie und grüßen das Quartier! Der einstige Block wird entkernt und zu einem neuen Ensemble von Höfen mit verschiedensten Durch- und Einblicken geschachtelt: Lernhof, Ruhehof, Aula und für alle das Atrium, Treff- und Angelpunkt und Herz der Anlage.
In der klar rhythmisierten Fassade sind die Funktionen der dahinterliegenden Geschosse ablesbar. Im Inneren findet man weitestgehend stützenfreie Räume mit einer hohen Flexibilität, perfekt für die heterogene und sich ständig ändernde Raumnutzung einer Universität. Der Komplex ist durchgehend auf einer klaren, orthogonalen Struktur, basierend auf dem 1,20 Meter - Modulraster aufgebaut. Die Decken überspannen in Querrichtung mittels Unterzügen die Traktbreite, um möglichst große zusammenhängende – und damit flexibel unterteilbare – Nutzungseinheiten zu ermöglichen.
Projektdetails
Auftragsart: offener, zweistufiger Generalplanerwettbewerb, Generalplaner
Auftraggeber: Bundesimmobiliengesellschaft
Ort: Wien, AT
Wettbewerb: 2018
Status: Wettbewerb
BGF: 60 230 m2
Baukosten:300 Mio. EUR
Energieeffizienz: Passivhausstandard
Mitarbeiter: Fabian Bartl, Michael Salvi, Andres Schenker, Rostislav Stoklásek, Tereza Tepla, Kristýna Trojanová, Zsófia Varga, Thomas Weber
Kooperation
Laborplanung: Limet Consulting
Statik: Gmeiner Haferl Bauingenieure
Bauphysik: IBO – Österreichisches Institut für Bauen und Ökologie
Gebäudetechnik: ZFG Projekte GmbH
Brandschutz: IMS Brandschutz
Landschaftsplanung: DnD Landschaftsplanung
Visualisierungen: Janusch
Modellbau: Modellbauwerkstatt Gerhard Stocker
- Stato del progetto
- Progetto
- Cliente
- BIG Bundesimmobiliengesellschaft
- Team
- Andres Schenker, Rostislav Stoklásek, Tereza Tepla, Kristýna Trojanová, Zsófia Varga, Thomas Weber, Fabian Bartl

















