Areal Lagerplatz
Das direkt beim Bahnhof gelegene Areal ‚Lagerplatz’ in Winterthur ist mit den grossmassstäblichen Hallenbauten, den Plätzen und engen Gassenräumen geprägt von seiner industriellen Vergangenheit. Der Perimeter für den Neubau Gebäude 141 liegt am südlichen Rand des Areals, am Übergang zu den angrenzenden Wohnbauten.
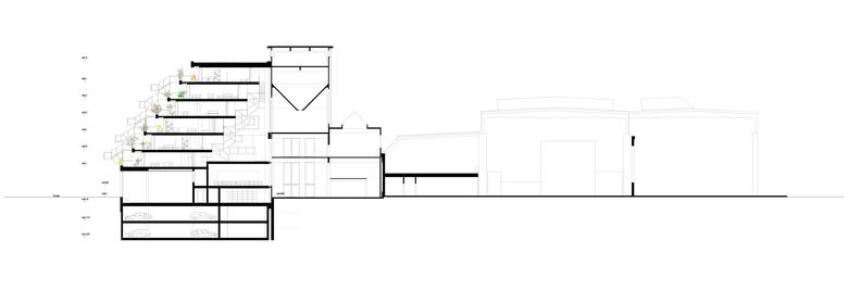
Mit der Setzung eines in seiner Grundform einfachen, langgestreckten Volumens wird einerseits die Tradition der pragmatisch aneinandergereihten Hallenbauten des ehemaligen Industrieareals weitergestrickt, durch die Abtreppung des Gebäudes zur Südseite hin gelingt jedoch auch ein weicher und subtiler Übergang zur benachbarten Wohnzone. Die Dimensionen der Abtreppung nehmen zudem auch eine formale Beziehung zu den Oblichtern der Hallenbauten auf. Durch drei expressive, auskragende Freitreppen wird die Länge des Gebäudes gegen Süden hin rhythmisiert.
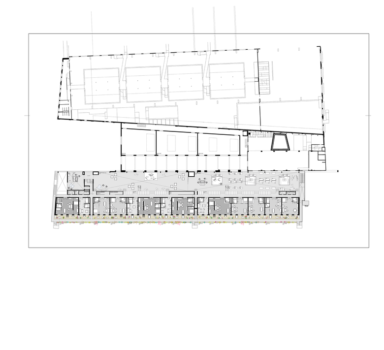
Die einfache Grundform des Neubaus bildet zusammen mit den bestehenden Bauten zwei einfache, klar definierte Aussenräume: einen Werkplatz am Gleisfeld und einen grosszügigen Aufenthalts- und Erschliessungsraum zur Tössfeldstrasse hin.
Die vorgeschlagene Gebäudetypologie des Neubaus könnte als ‚Paarung einer Terrassensiedlung mit einer Industriehalle’ bezeichnet werden und bildet nicht nur die Bedingungen aus der Situation ab sondern ist auch eine dreidimensionale Antwort auf das nicht alltägliche Raumprogramm des Studienauftrags: Unter der typischerweise nach Süden ausgerichteten Terrassensiedlung mit den Wohneinheiten entsteht ein sehr hoher, hallen-artiger ‚Negativraum’, eine riesige Werkhalle, die das Programm der ZHAW und die gemeinschaftlichen Bereiche der Genossenschaft «Zusammen_h_alt» aufnimmt.
An die Südfassade der Halle 189 wird zum Teil direkt angebaut. Diese wird damit zur ‚atmosphärischen Innenfassade’ der neuen Schulräume und der Tätigkeitsplatform der Genossenschaft «Zusammen_h_alt». Es entsteht ein für den ‚Lagerplatz’ typisches, dichtes Nebeneinander der Schulnutzungen mit den halböffentlichen Bereichen der Genossenschaft.
Auftragsart
Verfahren Studienauftrag 2014
Programm
Alterswohnungen für die Genossenschaft «Zusammen_h_alt», Schulungs-, Büro- und Laborräume für die ZHAW
- Anno
- 2013
- Stato del progetto
- Progetto
- Cliente
- Stiftung Abendrot
- Team
- Landschaftsarchitektur Lorenz Eugster Landschaftsarchitektur und Städtebau GmbH




