Concours Auberge de Jeunesse, Neuchâtel
Die vom Rebbau geprägte Umgebung der École des Sablons hat im Zuge der Transformation zum Wohnquartier im 19. und 20. Jahrhundert mit ihren Terrassen, Brücken, Treppen und eingeschnittenen Wegen einen expliziten Charakter hinterlassen. Selbst die Gebäude haben durch die Hanglage nicht selten Zugänge in mehreren Etagen.
Der dem Haus vorgelagerte ehemalige Pausenplatz auf dem Dach der centrale électrique erweitert dieses System und stellt als solcher neben dem nahe gelegenen Place des jeux de la Boine einen der wenigen grösseren halböffentlichen Plätze dar.
Auf der Ebene des ehemaligen Pausenplatz angekommen, wird das Haus entweder über den südöstlich gelegenen Treppenaufgang oder, behindertengerecht, über die seitliche zur Terrasse führende Rampe durch das Hauptportal des Hauses betreten. Velofahrer, motorisierte Besucher und der Anlieferverkehr werden über die südwestliche Zufahrt zum hinteren Platzbereich geführt, wo auch deren Parkplätze untergebracht sind. Die Anlieferung erfolgt von der Küche gut ersichtlich über den ebenerdigen Hintereingang, der gleichzeitig als Fluchtweg aus dem Treppenhaus dient.
Der Platz auf dem Dach der centrale électrique soll mit einfachen Mitteln zum Identitätsstiftenden Ort umfunktioniert werden. Pergolen spenden Schatten und erinnern mit ihren weinbepflanzten Gerüsten an frühere Zeiten des Ortes. Ein Ort an dem der Quartierbewohner auf den Gast der Jugendherberge trifft, sei es beim Bier auf der Terrasse oder beim Pétanque auf dem neu gestalteten Dach.
Der Entscheid den grosszügigen Freiraum um das bestehende Schulhaus zu würdigen mündet letztlich auch im Versuch, das Raumprogramm im Bestand unterzubringen und bis auf die vorgelagerte neue Terrasse mit Pergola auf einen Annex zu verzichten.
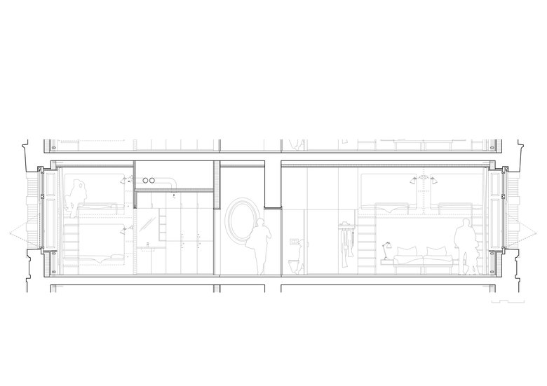
Der zentrale Treppenraum war schon in der Nutzung als Schulhaus ein Ort der Begegnung – sei es bei der Ankunft im Foyer und den Garderoben oder auch zwischen den Pausen. Auch ein Ort wo die Schüler von heute auf denselben Granitstufen wie diejenigen des ausgehenden 19. Jahrhunderts viel Kindheitsgeschichte geschrieben haben. Durch die Neuorganisation der WC-Anlagen werden zusätzlich zu den südostseitigen Räumen am Treppenhaus auch auf dem hangseitigen Halbgeschoss Flächen freigespielt. Die Obergeschosse sind so in Analogie zur ehemaligen schulischen Nutzung ebenfalls mit einer Vielfalt an öffentlichen Aufenthaltsorten versorgt und erheben das Treppenhaus zu mehr als einer blossen Vertikalerschliessung.
Die Einführung einer neuen raumhaltigen Schicht an den Flanken des Treppenhauses nimmt die Nasszellen mit dem Lift auf und ermöglicht die vollständig behindertengerechte Erschliessung des ganzen Hauses. Der neue Einbau der Gruppenzimmer (4-er und 6-er) auf der dem Platz zugewandten Gebäudeseite lässt Platz für einen Korridor, der auch die hangseitigen Zimmer erschliesst. Alle Zimmer sind auf die Fassadenöffnungen abgestimmt. Bis auf die neu eingeführten ovalen Fenster zur Belichtung des Korridors bleibt somit die ursprüngliche äussere Erscheinung des Gebäudes bestehen.
Der Frage der Privatsphäre in den Gruppenzimmern wurde besondere Beachtung geschenkt. Alle Zimmer werden durch einen Vorraum betreten, in dem die Wasch- und Staumöglichkeiten für die Gäste untergebracht sind. Eine Schiebetür schützt z.B. noch schlafende Gäste vor Licht und Lärm, den aufbrechende Gäste allenfalls bei der Morgentoilette oder dem Packen verursachen. Im eigentlichen Schlafraum sind die Betten in einer Raumhaltigen Schicht als Kojen ausgebildet, die sich so vom am ursprünglichen Fenster liegenden Zimmervolumen nochmals fein abgrenzen. Die WC-Anlagen sind geschlechtergetrennt auf zwei Halbgeschossen, bzw. für Behinderte auf dem Vollgeschoss untergebracht. Die Duschräume sind jeweils einzeln und geschlechterneutral über die Geschosse verteilt angeordnet.
Die statische Grundstruktur des Gebäudes weist trotz der neu eingeführten Schicht hangseitig links und rechts des Treppenhauses jeweils einen Eckraum mit zweiseitiger Belichtung auf, der jeweils ein Zweierzimmer in der Ecke und ein Familienzimmer (bzw. im Erd- und 3. Obergeschoss ein Vierer- und ein behindertengerechtes Zimmer) aufnimmt. Die Zimmer sind entsprechend dem klassischen Hotelzimmer mit einer Nasszellenbox im Eingangsbereich ausgestattet. Die Familienzimmer werden zusätzlich zum konventionellen Doppelbett mit zwei darüber liegenden Schlafkojen ausgestattet. Der idyllische Ausblick in die hangseitigen Gärten verströmt eine ruhige Atmosphäre.
Der Entscheid die Familien- und Zweierzimmer übereinander und durch die dicke Mittelwand und den Korridor von den Gruppenzimmern getrennt anzuordnen bringt nicht zuletzt auch akustische Vorteile mit sich.
Die Unterbringung der Dienstwohnung im Dachgeschoss begünstigt diese mit etwas mehr Privatheit und spielt andererseits im Erdgeschoss ausreichend Platz frei um dort die in enger Beziehung stehenden Nutzungen wie Reception, Refectorium, Küche und Bar entlang der gesamten Südwest- bzw. Südostfassde unterzubringen. Ein inmitten dieser Nutzungen angeordnetes Backoffice ermöglicht es, auch im Betrieb mit wenig Personal den Überblick zu behalten. Das öffentliche Erdgeschoss erhält über die neue Terrasse auch einen adäquaten Bezug zum grossen Vorplatz.
- Anno
- 2020
- Stato del progetto
- Progetto
- Projektwettbewerb
- 2. Platz





