Gold Silber Bronze
Umgeben von den unterschiedlichsten Bewegungsströmen auf der einen und dem beschaulichen Kleingartenidyll auf der anderen Seite ist es schwierig, an diesem Ort nicht die Orientierung zu verlieren. Um nicht fortgerissen zu werden, benötigt es einen Ankerpunkt - ein Zentrum um sich zu fokussieren, zur Ruhe zu kommen, dabei aber gleichzeitig offen zu bleiben für das, was rundherum passiert.
Dies erreichen wir durch die Anordnung von 3 unterschiedlichen hohen Baukörpern um ein –gemeinsames, öffentliches Zentrum.
Ein flacher, öffentlich zugänglicher Sockel und ein "schwebendes" Dach über der Passage fassen das Ensemble zusammen. Dadurch ermöglichen wir einerseits eine optische Reduktion der Massen, hohe Wirtschaftlichkeit, Signifikanz im Stadtbild (U2 Strecke, Südosttangente), sowie städtisches Leben mit offener Geschäftszone zwischen U-Bahn Station, Bus Haltestelle und Kaisermühlendamm.
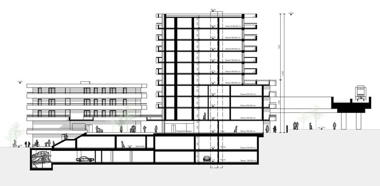
Den Hochpunkt positionieren wir als Lärmbarriere (35 m) zu U-Bahn und Südosttangente . Ein 23m hohes Gebäude am Effenbergplatz (7 m abgerückt von der Kaisermühlenstraße) bildet den Abschluss der bahnbegleitenden Bebauung und Schallschutz zur A22. Der hier vorragende Sockel beherbergt den Kindergarten und stellt höhenmäßig den Übergang zum Kleingartengebiet her. Ein 16m hoher Baukörper an der Ecke Kaisermühlendamm / Kaisermühlenstraße bildet den Anschluss an die gegenüberliegende straßenbegleitende Bebauung.
Das Sockelbauwerk mit einer Höhe von 4.30m (bzw. 3.70m beim Kindergarten) beinhaltet den Supermarkt im Osten, den Kindergarten im Westen sowie Stellplätze für 43 Autos und verbindet über Treppen und flachen Rampen die angrenzenden Niveaus an 4 Seiten.
Alle drei Wohnhäuser werden vom zentralen Platz erschlossen und erhalten die Adresse Effenbergplatz 1-3. Fußläufig sind die Eingänge somit direkt an U-Bahn oder Busstation angebunden. Die drei Erschließungskerne führen in die gemeinsame Tiefgarage und somit zu den zugeordneten Stellplätzen.
Die gedeckte Passage: zum zentralen Platz hin (Ebene 1) werden die Balkone der Häuser in Ebene 2 tiefer ausgeführt und stellenweise über Stege miteinander verbunden. So entsteht nicht nur bildlich ein Konnex zwischen den Häusern sondern auch eine gedeckter Bereich vor den Geschäftsfassaden, der Schatten und Witterungsschutz bietet.
Wettbewerb, 2017
- Anno
- 2017
- Stato del progetto
- In costruzione
- Freiraumplanung
- Carla Lo Landschaftsarchitektur


