Dodo Art Museum
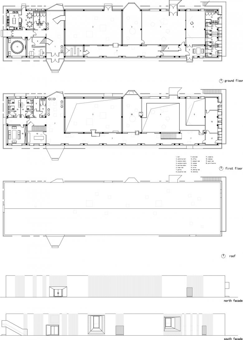
Dodo Art Museum is located in the northeast part of Beijing Xiedao Resort, it occupies the former site of an idle factory building of unsophisticated steel-frame. The forest in the north and the open space in the south isolate the construction from the city, making it an area with fewer people. Based on the surroundings and the art museum's internal function, we organize several tubular areas of cross-section variation in the original building, and connect the different areas with smaller tubular transition space, so as to create a series of spaces for art exhibition, creation, reception, office work, rest and etc., bordered by outdoor landscape and sky. We create a second facade of virtual-actual combination by weathering steel plate, interlacing with the tubular spaces which break out the facade from inside, and living in harmony with the trees nearby. The site is from nowhere to somewhere when the image of the rust is changing and the landscape around is getting exquisite. It is, then, in the non-reference urban tissue through such solemn interplay of desolation and orderliness, constraint and freedom, death and rebirth, the absurd and introspection, helplessness and power that unprecedented readings on local environment start to emerge.
INFORMATION
Project Name: Dodo Art Museum
Architects: unarchitecte
Website: www.unarchitecte.cn
Email: office@unarchitecte.cn
Architect in charge: Zhang Hetian
Design Team: ZHANG Hetian, ZENG Huajing, SUN Qingfeng, SUN Jihua, CAI Feiyong, LIU Haifeng
Completion Year: 2017
Area: 1800 sqm
Address: Northeast part of Beijing Xiedao Resort, Beijing, China
Photographer: Zhang Hetian
Development company: Dodo Art Museum
Construction company: Changchenghuayao Decoration Engineering Co., Ltd
Materials:weathering steel plate
- Anno
- 2017
- Stato del progetto
- Costruito










