Integrierte Gesamtschule
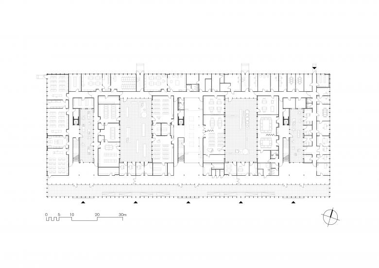
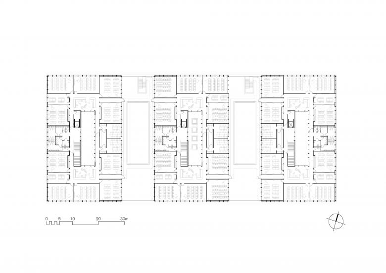
Das Grundstück der Integrierten Gesamtschule befindet sich an der Burgfeldsweide, südlich des Stadtzentrums von Rinteln (Niedersachsen). Ein einfacher und geometrisch klarer Baukörper, der für maximal 900 Schüler konzipiert wurde, ergänzt gegenüber des bestehenden Gymnasiums das Ensemble auf dem Schulareal. Mit seiner ruhigen, rechteckigen Geometrie formuliert der zweigeschossige Neubau einen stadträumlichen Gegenpol zur gewachsenen Struktur des Bestandsbaus. Seine Fassade besteht aus im eigenen Forstbetrieb des Bauherrn geschlagenem Lärchenholz. Zum Schulhof hin besitzt der 112 Meter lange Neubau an seiner gesamten Längsseite eine offene Eingangszone, die als Willkommensgeste, gedeckter Pausenbereich, Kommunikationsfläche und zur Erschließung der einzelnen Lerncluster dient. Durch dieses vermittelnde Entree entsteht ein niederschwelliger Zugang in ein helles und freundliches Schulgebäude. Klar und einfach ist auch die innere Aufteilung des Neubaus: Auf einem mit Fachräumen und Verwaltung belegten Sockel sitzen drei rechteckige Doppelcluster, die über vier Innenhöfe unterteilt und belichtet werden. Die IGS wurde barrierefrei, integrativ und nachhaltig geplant. Sie ist als demontierbarer Massivholzbau mit Holzrahmenfassade ausgeführt, nahezu alle wesentlichen Tragwerks- und Bauteile bleiben im Innenraum sichtbar. Dadurch wird der Holzbau initialer Bestandteil des Gestaltkonzepts. Angenehme Raumatmosphäre und Materialhaptik verbinden sich mit rationeller Fertigung, kurzer Bauzeit und einem zukunftsweisenden Energiekonzept.
- 年
- 2021
- プロジェクトステータス
- 竣工済
- クライエント
- Landkreis Schaumburg represented by Thomas Kreimeyer
- チーム
- Marc Nuding, Heiko Grimm, Benjamin Beilharz, Erik Bossog
- Local construction management
- Ernst2
- Project management
- pmd Gesellschaft für Projektmanagement
- Structural engineering
- Wetzel und von Seht GbR














