Archicreation
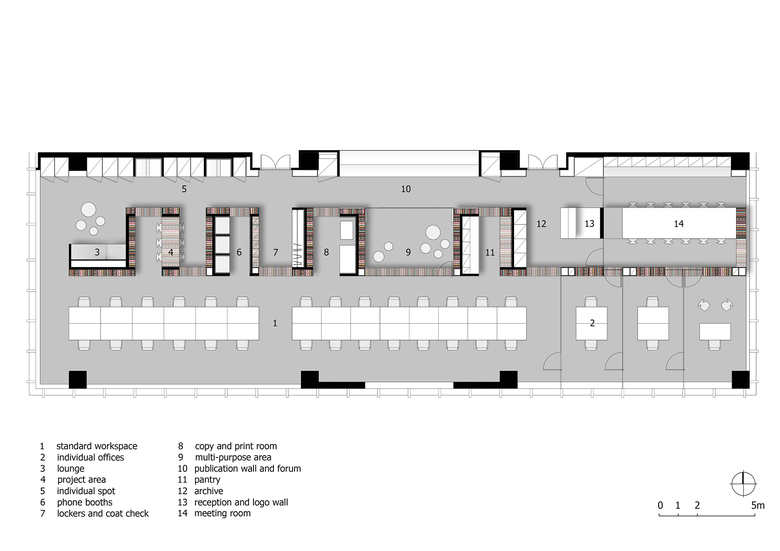
A spine of bookcases defines the working environment for this publishing company. Incorporating seating niches, working surfaces, meeting spots and small rooms. Supporting the company's goal of a new working method. Amove towards a nonhierarchical contemporary office.
HYPRID BOOKSELF SUPPORTING WORKING METHODS
Following a strict linear order, a high functioning, compressed program, translates into a simplified design. A large supply of bookshelves defines the organizational system for the whole office. Providing ample spaceto store and archive magazines, books and documents related to publications.
An almost uninterrupted table surface unifies the space and underlines the idea of a flat hierarchy. Chief editor, deputy chief editor and the administrative and financial department are separated by glass partitions, but stay visually connected.
Following the reception is a pantry area, a multi purpose room, a copy and print area, a coat check with individual lockers, a pinup wall and phone niches and a small open meeting area. A relaxation zone completes this linear sequence of functions at the other end.
- 年
- 2013
- プロジェクトステータス
- 竣工済
- クライエント
- Archicreation Publication House, 建筑创作出版社
- チーム
- Binke Lenhardt, DONG Hao, Tracey Loontjens, Brecht van Acker








