AdH House
«Es un proyecto pensado de dentro hacia fuera».
—Francesc Rifé
Aunque México siempre se ha definido por los colores intensos y los interiores vibrantes, la geometría nítida y la paleta serena de esta vivienda buscaban compensar la emoción de la animada colección de arte de los propietarios. Situada en el barrio residencial de Lomas de Chapultepec, el diseño de la arquitectura por parte del estudio ha permitido desarrollar un mismo lenguaje —basado en la calidad espacial y un profundo sentido del orden— tanto en el interior como en el exterior.
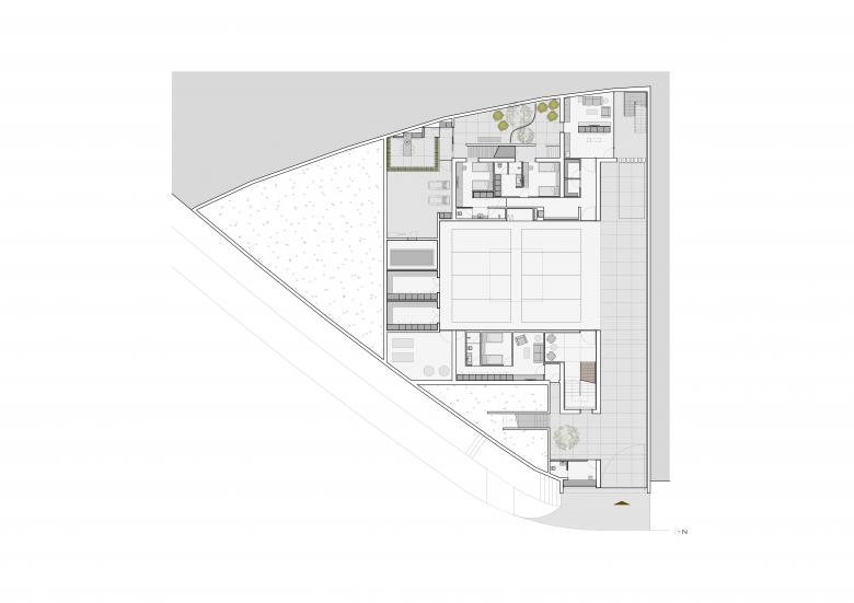
Dividida en dos volúmenes principales, el primero aloja la única escalera con acceso a las tres plantas, caracterizada por un diseño sólido e integrado en el propio espacio. Sin apenas distracciones visuales, ni de forma, ni de materialidad, el trazo superior metálico de la barandilla representa muy bien el constante empeño del estudio por enfatizar los detalles, mientras que una ligera separación de los paramentos del edificio hace de este elemento un escenario en sí mismo. Le acompaña en el camino el recibidor que se abre al exterior a través de una gran cristalera, flanqueada por un banco corrido y dos obras de los artistas Iván Navarro y David Rodríguez Caballero. El diseño del espacio anima a mirar hacia arriba donde un gran número de lámparas, suspendidas de una claraboya, realzan la doble altura.
En el segundo volumen, donde se resuelve el resto de la vivienda, la distribución y los colores persiguen complementar la colección de arte sin abrumarla. En la planta baja se ubican las zonas de día de la familia como son la cocina, dos salas de estar y comedores con acceso a la terraza a través de grandes ventanales. La primera planta se reserva a los cuatro dormitorios, cada uno de ellos con baño, armario-vestidor y acceso a dos salas de estar comunes. En el semisótano, la vivienda cuenta con una bodega equipada con una mesa de degustación de mármol negro y envuelta por estantes para la exposición y conservación del vino. La atmósfera delicada y silenciosa de este espacio contrasta con la del gimnasio, con el que queda conectado visualmente, así como con la claridad de un patio inglés al que se enfrenta.
En la parte delantera de la casa, una terraza en absoluta quietud y rodeada de abundante vegetación crea un espacio abierto y lleno de sentido para los propietarios. Una lámina de agua da la bienvenida y se utiliza como medio para equilibrar el espacio, desconcertando sobre dónde termina lo sólido y comienza lo líquido. Desde este plano, la neutralidad de la fachada en piedra natural gris Rochelle toma carácter por el uso de porticones con listonado en aluminio. Un sistema, en forma de celosía, que permite controlar la entrada de luz en los dormitorios, mientras envuelve a los residentes en un escudo de privacidad. En la parte trasera, más fresca y aislada, dos patios elevados se prestan a la teatralidad sosegada de obras escultóricas y detrás de esta escena, conectado con la cocina, se presenta un pequeño huerto.
La calidad emocional de la vivienda también deriva del mobiliario. Diseños icónicos de Cassina se mezclan con muebles hechos a medida, y la iluminación decorativa de Viabizzuno como la lámpara Da Ma o el sistema N55 arrojan luz sensorial en las estancias comunes. Finalmente, la proyección de una chimenea revestida en latón sulfurizado, que desciende desde el techo de una de las salas de estar, respalda el lenguaje cálido del interior. Una llamada más a los sentidos, a la sensación de intimidad y de refugio.
- 年
- 2020
- プロジェクトステータス
- 竣工済



























