Salon Mentes
Ein moderner Friseursalon in einem industriehistorischen Gebäude: Ein solches Konzept gelingt, wenn der Inhaber präzise Vorstellungen entwickelt hat.
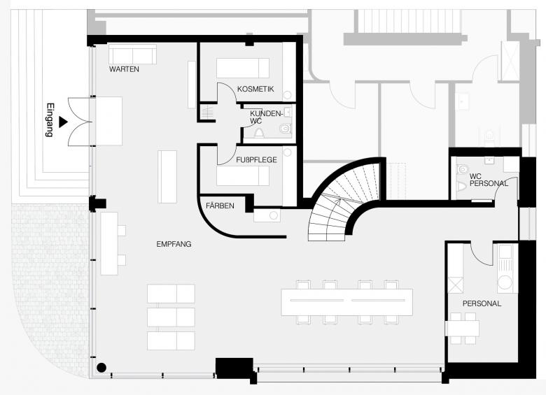
Wir unterstützten den Göppinger Friseurmeister Nico Mentes zunächst bei der Standortsuche, die schließlich ins historische Industrieareal im Göppinger Westen führte. In dem ehemaligen Werksgebäude der Firma Boehringer hatten sich bereits eine große Markthalle sowie gastronomische Betriebe etabliert. Der Salon Mentes befindet sich heute im vormaligen Eingangs- und Empfangsbereich des industriehistorischen Gebäudes.
Der Salon ist auf einer Ebene untergebracht und liegt im Erdgeschoss direkt an der Ecke einer stark frequentierten Straßenkreuzung. Zentrale Leitlinie bei der Lösung aller Gestaltungsfragen: Die Kundinnen und Kunden des Salons stehen stets im Mittelpunkt. Raumgestaltung, Lichtambiente und schlichte Ausstattung unterstützen und schärfen die Aufmerksamkeit.
Empfangsbereich, Spiegeltische, Mobiliar, Accessoires und Materialien wie Vorhänge und Oberflächen einschließlich Farbklima wurden in enger Zusammenarbeit mit dem Inhaber geplant und ausgeführt. Bei der Beleuchtung fiel die Wahl auf eine Lösung, die natürlichem Tageslicht entspricht. Bei den Oberflächen waren die spezifischen Beanspruchungen durch die in einem Friseursalon üblichen Arbeitsmittel zu bedenken.
In der Umsetzung führte die konsequente Kundenorientierung zu einem reduziert gehaltenen Design. Die Industrieatmosphäre des Bestandsgebäudes wird durch die Innenarchitektur begleitet. Die Raumanmutung des ehemaligen Fabrikbaus befördert durch ihre Schlichtheit und Klarheit den vom Inhaber definierten Zweck: eine individuelle und konzentrierte Hinwendung zum Kunden bei Beratung und Service.
Planverfasser: Gaus & Knödler Architekten PartGmbB (ab 01.09.2019: Gaus Architekten)
- 年
- 2017
- プロジェクトステータス
- 竣工済
- クライエント
- privat






